
Neubau einer Kindertagesstätte in Reichelsheim
Die Stadt Reichelsheim (Wetterau) beabsichtigt aufgrund der gestiegenen Bedarfe und des erhöhten Versorgungsumfangs eine neue sechsgruppige Kindertagesstätte zu errichten.
Gegenstand des Wettbewerbs
Die Kindertagesstätte soll ein richtungsweisendes Projekt mit hohen Ansprüchen an die Funktionalität und die Energieeffizienz werden. Im Bereich des avisierten Standortes befinden sich mehrere Sportanlagen sowie ein Bürgerhaus. Das Grundstück ist unbebaut und frei von rechtlichen Belastungen. Das Raumprogramm umfasst
1.230 m² Nettogrundfläche.
Im Mai 2020 ist das Preisgericht zusammengekommen und hat einen 1. Preis und zwei 3. Preise verliehen:
- 1. Preis (12.500 Euro): twoo architekten GmbH, Köln
- 3. Preis (6.250 Euro): ARGE Klaus Leber Architekten BDA und Lars Otte Architektur, Darmstadt
- 3. Preis (6.250 Euro): Schmidt & Strack Architekten GmbH, Alsfeld
Preisträger in der Übersicht
1. Preis

Ein 3. Preis

Ein 3. Preis

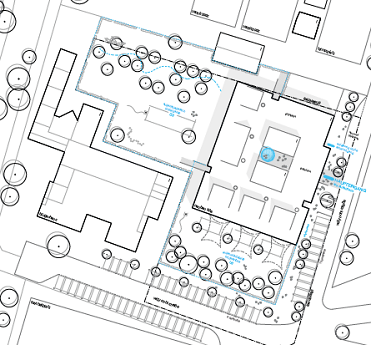
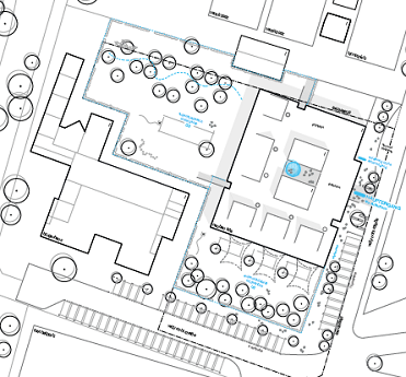
1. Preis
Die Verfasser formulieren einen kompakten eingeschossigen Baukörper, der sich als weiterer Baustein in der Abfolge vorhandener Solitärbauten am östlichen Ortsrand zwischen Bürgerhaus und Schule positioniert. Diese städtebauliche Setzung im nordöstlichen Bereich des Baugrundstücks wird als vorteilhaft bewertet. Insgesamt zeichnet sich der Entwurf durch seine übersichtliche Gestaltung und eine hohe Wirtschaftlichkeit aus.
Auszug aus dem Protokoll der Preisgerichtssitzung zum 1. Preisträger
Ein 3. Preis
Ein 3. Preis
Steckbrief
| Wettbewerbstitel | Nichtoffener Realisierungswettbewerb für den Neubau einer sechsgruppigen Kindertagesstätte |
|---|---|
| Auslober | Magistrat der Stadt Reichelsheim, Zum Rathaus 1, Reichelsheim/Wetterau |
| Wettbewerbsmanagement | BSMF Beratungsgesellschaft für Stadterneuerung und Modernisierung mbH, Uhlandstraße 11, Frankfurt am Main |
| Teilnehmer | Architekt*innen |
| Beteiligung | 17 Arbeiten |
| Fachpreisrichter | Prof. Kerstin Schultz, Darmstadt (Vorsitz) |
| Sachpreisrichter | Bertin Bischofsberger, Bürgermeister Stadt Reichelsheim Jutta Scheibner, Leiterin KiTa Steinbeißer, Reichelsheim Sonja Jung, Fachberaterin Wetteraukreis |
| Sachverständige | Rainer Schauermann, SPD-Fraktion, Reichelsheim Dr. Erich Sehrt, CDU-.Fraktion, Reichelsheim Hans-Guenter Scholz, FW-Fraktion, Reichelsheim Horst Wenisch, Büroleitung, Reichelsheim |










