
Die Skyline der Europastadt entwickelt sich fort - Neuer Büro- und Wohnturm
Die Silberturm GA 8 GmbH & Co. KG lobt einen nichtoffenen einphasigen hochbaulichen Realisierungswettbewerb, in Form eines Einladungswettbewerbs, gemäß den Richtlinien der RPW 2013 aus.
Gegenstand des Wettbewerbs
Mit dem Hochhausentwicklungsplan 2024 (HEP2024) hat die Stadt Frankfurt am Main ein Leitbild für eine zukünftige städtebauliche Entwicklung mit 14 neuen Hochhausstandorten beschlossen. Die neuen Standorte werden an folgende qualitative Bedingungen für die Hochhäuser geknüpft:
- Gesellschaftlicher Mehrwert für ihre Umgebung und für das Quartier
- Öffentlichkeitswirksamer Sockel
- Durchmischte Nutzungen
- Erreichen formulierter Nachhaltigkeitsziele
Die im HEP2024 definierten Planungsprinzipien / Stadt + Quartier werden in dem Projekt am Standort Gallusanlage 8 realisiert:
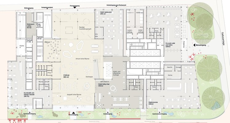
Das Cluster westlich der Gallusanlage soll ergänzt und damit die Hochauspromenade entlang der Wallanlagen gestärkt, der Nutzungsmix im Quartier gefördert und der Hochhaussockel aktiviert werden.
Ebenso sollen die definierten Planungsprinzipien konsequent umgesetzt werden: Der Blockrand wird geschlossen, Hochhäuser werden harmonisch in das Straßenbild integriert, aktive Erdgeschosszonen geschaffen und der Sockel vertikal gegliedert. Das Konzept 'Eyes on the Street' wird implementiert, Hochhausnutzungen durchmischt, das Dachgeschoss des Büroturms öffentlich zugänglich gestaltet und die Dachlandschaft multifunktional genutzt. Die Dachlandschaft der Sockel dient als erweiterte Freifläche.
Darüber hinaus werden besondere Anforderungen an das nachhaltige und ressourceneffiziente Bauen von Hochhäusern gesetzt und das Planen nach Lowtech Prinzipien gefördert. Die historische Bausubstanz wird respektvoll behandelt sowie die Tiefgarage gemeinsam genutzt und Servicebereiche effizient gebündelt.
Die Gebäude sollen als Katalysator urbaner Quartiersentwicklung wirken, Interaktion mit dem öffentlichen Raum ermöglichen und einen gesellschaftlichen und städtebaulichen Mehrwert für die Umgebung und die Stadt erzeugen.
Die vorgesehene Kulturnutzung (Kunsthalle/Galerie) soll eine Ergänzung und Stärkung der Kulturmeile entlang der Gallus-/Taunusanlage bewirken.
Eine begrünte Sockelfassade zur Neckarstraße, zusätzliche Bäume an der Gallusanlage und in der Neckarstraße sowie die mikroklimatisch optimierte Positionierung der Türme sollen zur Steigerung des Wohlbefindens im Quartier beitragen.
Das Konzept will einen neuen, zukunftsgerichteten Standard in der Entwicklung von nachhaltigen Hochhäusern setzen und die Grundlage für eine DGNB Gold Zertifizierung legen.
Im Dezember 2025 ist das Preisgericht zusammengekommen, und hat drei Preise sowie eine Anerkennung verliehen
- 1. Preis: (130.000 Euro): Ferdinand Heide Architekten Planungsgesellschaft mbH, Dipl.-Ing. AKH BDA DWB Architekt Ferdinand Heide, M.Sc. TU, AKH BDA Architekt Lorenz Heide, Frankfurt am Main
- 2. Preis: (100.000 Euro): Barkow Leibinger Gesellschaft von Architekten mbH, Dipl.-Ing. Architektin, M.Arch Prof. Regine Leibinger, B. Arch, M. Arch Architekt Frank Barkow, Berlin
- 3. Preis: (80.000 Euro): C.F. Møller Deutschland GmbH, Dipl.-Ing. Architekt Thomas Margaretha, Berlin
- Anerkennung: (20.000 Euro): Schmidt Ploecker Architekten PartG mbB, Dipl.-Ing. Architekt, M. Arch. Urban Design Christian Olaf Schmidt, Dipl.-Ing. Architekt, DGNB ESG-Manager und -Auditor Sebastian Schuster, Frankfurt am Main
Preisträger in der Übersicht
1. Preis

Anerkennung

2. Preis

3. Preis

1. Preis
Der Entwurf fügt sich sehr gut in den städtischen Kontext ein. Er nimmt sich mit seinem schlichten, zeitlosen Erscheinungsbild formal zurück und gewinnt durch einen subtilen Versatz der Türme eine eigene Eleganz und tritt so mit der umgebenden Bebauung und besonders mit dem gegenüberliegenden Park in Dialog und nutzt das besondere Potential des Grundstücks.
Auszug aus dem Protokoll der Preisgerichtssitzung zum 1. Preisträger
2. Preis
3. Preis
Anerkennung
Steckbrief
| Wettbewerbstitel | Realisierungswettbewerb Doppelturm ga8, Frankfurt am Main |
|---|---|
| Auslober | Silberturm GA 8 GmbH & Co. KG, Bavariafilmplatz 7, Grünwald |
| Wettbewerbsmanagement | AS+P Albert Speer + Partner GmbH, Hedderichstraße 108-110, Frankfurt am Main |
| Teilnehmer | Architekt*innen |
| Beteiligung | 12 Arbeiten Eingeladen wurden acme, London Barkow Leibinger, Berlin CF Møller, Århus Christoph-Ingenhoven architects, Düsseldorf Delugan Meissl Associated Architects, Wien Ferdinand Heide Architekt BDA, Frankfurt am Main Henke Schreieck Architekten, Wien Neutelings Riedjik Architects, Rotterdam Sauerbruch Hutton, Berlin Schmidt Ploecker, Frankfurt am Main schneider+schumacher, Frankfurt am Main White Arkitekter, Göteborg |
| Fachpreisgericht | Prof. Ulrike Lauber |
| Sachpreisgericht | Daniel Preusse, Versicherungskammer Real Estate GmbH (Geschäftsführer), München Dr. Josef Ostermayer, GA 8 GmbH & Co. KG Stadtrat Prof. Marcus Gwechenberger, Dezernat für Planen und Wohnen, Stadt Frankfurt am Main Martin Hunscher, Leiter Stadtplanungsamt, Frankfurt am Main Markus Datzer, Versicherungskammer Real Estate GmbH (Head of Development and Construction), München (Stellvertretung) Nematollah Farrokhnia, NFa PS, Wien (Stellvertretung) Markus Radermacher, Vertretung Dezernat für Planen und Wohnen, Stadt Frankfurt am Main (Stellvertretung) Tobias Vogel (Abteilungsleitung 61.4), Städtebauliche Planung, Stadtplanungsamt Frankfurt am Main (Stellvertretung) |
| Sachverständige | Moritz Brombacher (Sachverständiger Berater Nachhaltigkeit), Werner Sobek GmbH, Stuttgart Daniel Torakai (Sachverständiger Berater Tragwerk), Werner Sobek GmbH, Frankfurt am Main Thomas Bühl-Nebel, MorgenGrün, Köln Markus Henzel (Sachverständiger Berater Brandschutz), Krebs+Kiefer, Frankfurt am Main Ingo Weiskopf (61.42, Projektleitung), Stadtplanungsamt Frankfurt am Main Matties Oetzmann (61.42, stellvertretende Projektleitung), Stadtplanungsamt Frankfurt am Main Christof Klawitter, (61.63, Ökologie und Landschaftsplanung), Stadtplanungsamt Frankfurt am Main Dr. Priscilla Nogueira, (61.34, Stadtentwicklung, Stadterneuerung und Wohnungsbau), Stadtplanungsamt Frankfurt am Main Caroline Hero (Konservatorin, 60B.15, Abteilung Bau- und Kunstdenkmalpflege), Denkmalamt Stadt Frankfurt am Main Dr. Maria Wüllenkemper, LRA Denkmalpflege Jana Leoni, Klimareferat, Stadt Frankfurt am Main Julia Mundt, Bauaufsicht Frankfurt am Main Andrea Bogdanic, Stadtplanungsamt Frankfurt am Main - Qualitätssicherung HEP2024 Christoph Packhieser, Stadtplanungsamt Frankfurt am Main (Qualitätssicherung HEP2024) Philipp Kühnapfel, Stadtplanungsamt Frankfurt am Main 61.22 – Öffentlichkeitsarbeit Dr. Matthias Fuchs, (Beratung Nachhaltigkeit + Energie), ee-concept GmbH, Darmstadt Uli Baier, Die Grünen im Römer Fraktion Gregor Amann, SPD Fraktion Johannes Hauenschild, Volt Michael Weber, Ortsvorsteher, Ortsbezirk I |





























