
Ein weiterer Abschnitt für den neuen attraktiven und einladenden Mittelpunkt
Die Stadt Eschborn lobt einen nichtoffenen einphasigen hochbaulichen Realisierungswettbewerb gemäß den Richtlinien der RPW 2013 aus.
Gegenstand des Wettbewerbs
Im Herbst 2009 wurde die Bebauung des Areals an der Ecke Kurt-Schumacher-Straße – Unterortstraße mit den Gebäuden „Neue Mitte Eschborn“ fertiggestellt und eingeweiht. Es handelt sich dabei um ein Gebäudeensemble mit einer Mischnutzung aus Gewerbe und Wohnflächen sowie einer Tiefgarage. Als zweiter Bauabschnitt erfolgte 2017 die Errichtung des Gebäudes in der Kurt-Schumacher-Straße 6-8.
Im Erdgeschoss des zu planenden Gebäudekomplexes, 3. Bauabschnitt der Neuen Mitte Eschborn, sind die Nutzungen Einzelhandel und Gastronomie geplant. Dort sollen zwei Gewerbe-/Gastronomieflächen mit jeweils 130 – 160 m² geschaffen werden mit repräsentativem Zugang zum Außenbereich. Für Kunden/Gäste der Gastronomie bzw. angebotenen Dienstleistungen soll ein Aufzug mit Zugang von der Unterortstraße zwischen Tiefgarage und Erdgeschoss errichtet werden.
In den ersten Obergeschossen sollen vorrangig gewerbliche Einheiten/Praxen/Büros entstehen. Optional wäre gegebenenfalls auch eine individuelle modular verknüpfbare Variante der Räumlichkeiten vorstellbar. Insofern sollte auch die notwendige technische Ausstattung vorab berücksichtigt werden. Die Gewerbeflächen im ersten Obergeschoss sollen flexibel nutzbar gestaltet werden.
Die oberen Geschosse (ab der zweiten Etage) sind für frei finanziertes und zu 30 % preisgebundenes Wohnen vorgesehen. Die Wohneinheiten sind mit variabler Wohnungsgröße zu planen und sollen hauptsächlich im Größenmix von 2-3 Zimmer/Küche/Bad/WC, 55-90 m² liegen. Ein besonderer Fokus der Wettbewerbsaufgabe liegt in der Planung von flexiblen Nutzungsmöglichkeiten der Wohneinheiten als auch der Einzelhandelsstandorte.
Die Anzahl der Baukörper ist nicht vorgeschrieben. Die Vorgaben des Bebauungsplans sind einzuhalten. Es soll ein luftiges und einladendes Quartier mit Wegebeziehungen zwischen den einzelnen Baukörpern entstehen. Somit ist nicht gewünscht, entlang der Unterortstraße einen langen „Riegel“ zu platzieren, der den Gebäudekomplex verschließt. Es soll ein erlebbares Areal mit kleineren Baukörpern geschaffen werden.
Der dritte Bauabschnitt der Neuen Mitte Eschborn soll sich in die umliegende Bebauung, insbesondere in die mediterrane Gestaltung des ersten Bauabschnitts der Neuen Mitte, einfügen und somit einen gelungenen Übergang zum anliegenden ersten Bauabschnitt der Neuen Mitten Eschborn gewährleisten.
Im Oktober 2025 ist das Preisgericht zusammengekommen, und hat drei Preise verliehen
- 1. Preis (35.500 Euro): ADNBA Planungsgesellschaft UG, Dipl.-Ing. Architektin Alexandra Bunescu, Berlin und Architekt Johannes Andreas Bertleff, Rumänien
- 2. Preis (21.300 Euro): BAYER & STROBEL ARCHITEKTEN PartGmbB, Dipl.-Ing. Architekt Gunther Bayer, Kaiserslautern
- 3. Preis (14.200 Euro): Architekten Wannenmacher + Möller GmbH, Dipl.-Ing. Architekt BDA Andreas Wannenmacher, Bielefeld
Preisträger in der Übersicht
1. Preis
ADNBA Planungsgesellschaft UG2. Preis

3. Preis
Architekten Wannenmacher + Möller GmbH1. Preis
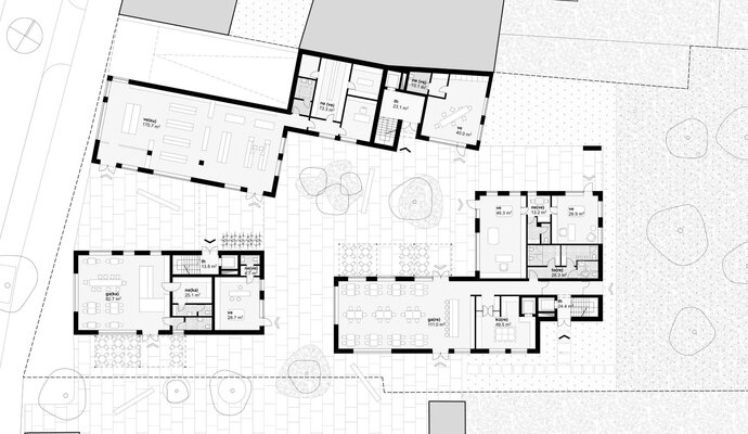
Die Arbeit überzeugt mit einer klaren, kleinteiligen Struktur und Setzung, die gut auf die vorgefundene städtebauliche Körnung reagiert, die Übergänge zu den früheren Bauabschnitten finden Beachtung. Die angebotenen Freiräume, der Hof und seine angrenzenden Gewerbeflächen sind stimmig, der rückwärtige Garten ist ein schönes Versprechen für das Quartier.
Auszug aus dem Protokoll der Preisgerichtssitzung zum 1. Preisträger
2. Preis
3 Preis
Steckbrief
| Wettbewerbstitel | Nichtoffener einphasiger hochbaulicher Realisierungswettbewerb Neue Mitte Eschborn – 3. Bauabschnitt, Eschborn |
|---|---|
| Auslober | Magistrat der Stadt Eschborn, Rathausplatz 36, Eschborn |
| Wettbewerbsmanagement | NIEMANN+STEEGE+, Wasserstraße 1, Düsseldorf |
| Teilnehmer | Architekt*innen |
| Beteiligung | 8 Arbeiten Davon gesetzt: Stark Architekten, Siegen Fritz Ludwig Architekten, Frankfurt am Main ROB Planergruppe, Schwalbach/Taunus |
| Fachpreisrichter | Prof. Klaus Legner, h4a Gessert + Randecker Generalplaner GmbH, Düsseldorf (Vorsitz) Prof. Dr. Jutta Albus, Jutta Albus Architektur, Leverkusen sowie Hochschule Bochum, Fachgebiet EKNB - Entwerfen und Konstruieren/Nachhaltiges Bauen Ferdinand Heide, Ferdinand Heide Architekten, Frankfurt am Main Alexander Theiss, Architekten Theiss Planungsgesellschaft mbH, Frankfurt am Main Thomas Fischer, ATELIER 30 Architekten GmbH, Kassel (Stellvertretung) Andreas Krawczyk, NKBAK Architekten, Frankfurt am Main (Stellvertretung) |
| Sachpreisrichter | Herbert Brendel, Geschäftsführer "Gemeinnütziges Wohnungsunternehmen GmbH" (GWE), Eschborn Michael Kübler, Geschäftsführer "Gemeinnütziges Wohnungsunternehmen GmbH" (GWE), Eschborn Adnan Shaikh, Bürgermeister der Stadt Eschborn Jürgen Andreas, "Gemeinnütziges Wohnungsunternehmen GmbH" (GWE), Eschborn (Stellvertretung) Alexander Jackson, Persönlicher Referent des Bürgermeisters, Stadt Eschborn (Stellvertretung) |
| Sachverständige | Nils Hoffmann, Mitarbeiter Bauverwaltung, Stadt Eschborn Johanna Kiesel, Kulturreferentin, Stadt Eschborn Xiaojuan Zhu, Mitarbeiterin Stadtentwicklung, Stadt Eschborn Pei Zhang, Magistrat der Stadt Eschborn, Fachbereich Planen und Bauen, Sachgebiet Hochbau |













