
Ein, Konfessionen verbindendes, Jugendmusikprojekt unter neuem Dach
Der Evangelische Regionalverband Frankfurt und Offenbach lobt einen nichtoffenen Realisierungswettbewerb mit vorgeschaltetem Teilnahmewettbewerb gemäß den Richtlinien der RPW 2013 aus.
Gegenstand des Wettbewerbs
Die Frankfurter Domsingschule bietet in ihren Chören über 300 Kindern und Jugendlichen bis hin zu jungen Erwachsenen eine fundierte musikalisch-sängerische Grundausbildung. In der Frankfurter Bläserschule musizieren über 50 Kinder und Jugendliche in unterschiedlichen Ensembles und Formationen. Die Kernangebote beider Einrichtungen sind kostenlos und richten sich ausdrücklich an alle interessierten Kinder und Jugendlichen, unabhängig von ihrer Religionszugehörigkeit. Die beiden relativ jungen Einrichtungen sind derzeit dezentral untergebracht und benötigen dringend eigene Räumlichkeiten für ihre Arbeit.
Vor diesem Hintergrund soll das »Haus der Frankfurter Jugendkirchenmusik« als erstes konfessionsverbindendes Jugendmusikprojekt in Deutschland entstehen. Es wird getragen von den beiden großen christlichen Kirchen, der Stadt Frankfurt am Main und der Frankfurter Bürgergesellschaft. Der geplante Standort des Hauses liegt an der Saalgasse im Herzen der Frankfurter Altstadt. Der Frankfurter Dom und die Alte Nikolaikirche sind fußläufig erreichbar. Eine weitere Besonderheit die Lage unmittelbar hinter dem Historischen Museum, dessen Gebäudefluchten sich in Richtung des geplanten Neubaus orientieren.
Partner in diesem ökumenischen Projekt sind das Bistum Limburg, der Evangelische Regionalverband Frankfurt und Offenbach, die Frankfurter Jugendkirchenmusik e. V., der Förderverein Frankfurter Domsingschule und Frankfurter Bläserschule sowie der Gesamtverband der katholischen Kirchengemeinden in Frankfurt zusammen mit dem Land Hessen und der Stadt Frankfurt am Main.
Das Wettbewerbsgebiet befindet sich im mittelalterlichen Stadtkern. Der Bereich war seit der Jungsteinzeit regelmäßig und spätestens seit der Spätantike durchgehend besiedelt. Um die im frühen 9. Jahrhundert entstandene Königspfalz entstand die zunächst kleine Siedlung Franconofurd. Im Laufe der Jahrhunderte wuchs die Bevölkerung der Stadt immer weiter an, wodurch sich die Wohndichte in der Altstadt kontinuierlich erhöhte. Die Gebäude hatten schließlich bis zu fünf Voll- und mehrere Dachgeschosse. Die bis dahin in überwiegenden Teilen erhaltene mittelalterliche Altstadt wurde im März 1944 durch Bombenangriffe nahezu vollständig zerstört. Das einzige im Originalzustand erhaltene Haus mit freiliegendem Fachwerk in der Frankfurter Altstadt, das die Luftangriffe auf Frankfurt am Main nahezu unversehrt überstand, ist das Haus Wertheim westlich gegenüber dem Saalhof bzw. dem Historischem Museum.
Im März 2025 ist das Preisgericht zusammengekommen, und hat zwei Preise sowie drei Anerkennungen verliehen:
- 1. Preis (22.000 Euro): Barkow Leibinger Gesellschaft von Architekten mbH, B. Arch, M. Arch Frank Barkow, Dipl.-Ing. Architektin, M.Arch Prof. Regine Leibinger, Berlin
- 2. Preis (13.000 Euro): MAX DUDLER GMBH, Dipl.-Ing. Architekt Max Dudler, Berlin
- Anerkennung (5.000 Euro): pussert kosch architekten PartGmbB BDA, Dipl.-lng. Architekt BDA Dirk Pussert, Dipl.-Ing. (FH) Architekt Achim Kosch, Dresden
- Anerkennung (5.000 Euro): Sturm und Wartzeck GmbH, Dipl.-Ing. Architekt BDA und Innenarchitekt Jörg Sturm, Dipperz
- Anerkennung (5.000 Euro): meck architekten gmbh, Dipl.-Ing. (FH) Architekt und Stadtplaner Axel Frühauf, München
Preisträger in der Übersicht
1. Preis
Barkow Leibinger Gesellschaft von Architekten mbH2. Preis
MAX DUDLER GMBHAnerkennung
pussert kosch architekten PartGmbB BDAAnerkennung
Sturm und Wartzeck GmbHAnerkennung
meck architekten gmbh1. Preis
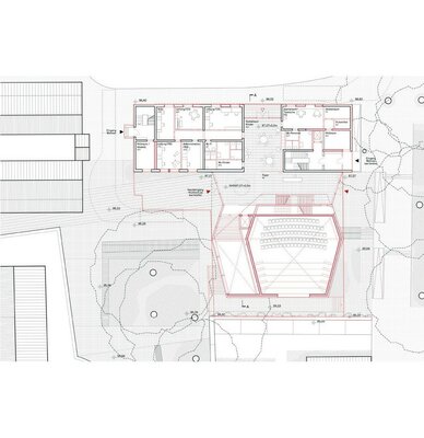
Der Entwurf überzeugt durch die kluge städtebauliche Platzierung eines klar ablesbaren Solitärs für die Nutzungen der Jugendkirchenmusik. Gleichzeitig gelingt ein geschickter Umgang mit dem bestehenden Wohngebäude, in dem durch vergleichsweise geringe bauliche Eingriffe eine hohe Wohnqualität geschaffen wird. Insgesamt wird die Arbeit als besonders gelungener Beitrag zum Wettbewerb gewürdigt.
Auszug aus dem Protokoll der Preisgerichtssitzung zum 1. Preisträger
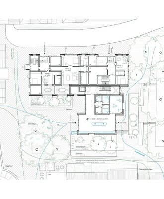
2. Preis
Anerkennung
Anerkennung
Anerkennung
Steckbrief
| Wettbewerbstitel | Nichtoffener Realisierungswettbewerb Haus der Frankfurter Jugendkirchenmusik |
|---|---|
| Auslober | Evangelischer Regionalverband Frankfurt und Offenbach, vertreten durch Holger Kamlah (Stadtdekan der Evangelischen |
| Wettbewerbsmanagement | a:dk architekten datz kullmann, Schillerplatz 16, Mainz |
| Teilnehmer | Architekt*innen |
| Beteiligung | 15 Arbeiten |
| Fachpreisgericht | Prof. Christa Reicher, Architektin und Stadtplanerin, Aachen (Vorsitz) |
| Sachpreisgericht | Dr. Christoph Brand, Vorsitzender des Kuratoriums des Frankfurter Jugendkirchenmusik e. V., Frankfurt am Main Dr. Johannes zu Eltz, Pfarrer der Dompfarrei St. Bartholomäus, Frankfurt am Main Holger Kamlah, Stadtdekan der Evangelischen Kirche in Frankfurt und Offenbach, Frankfurt am Main Marcus Kauer, Leitung Kulturelle Bildung, Hessisches Ministerium für Kultus, Bildung und Chancen, Wiesbaden Tobias Vogel, Stadtplanungsamt, Frankfurt am Main Cornelius Boy, Leitung Abteilung III (Bau, Liegenschaften und Hausverwaltung), Evangelischer Regionalverband Frankfurt und Offenbach, Frankfurt am Main (Stellvertretung) Stefan Muth, Diözesanbaumeister, Bistum Limburg (Stellvertretung) Markus Pfüller, Vorsitzender Frankfurter Jugendkirchenmusik e. V., Frankfurt am Main (Stellvertretung) |
| Sachverständige | Anja Brückner, Abteilung III (Bau, Liegenschaften und Hausverwaltung), Evangelischer Regionalverband Frankfurt und Offenbach, Frankfurt am Main Denise Draser, Trebur, Brandschutz Claudia Köster, Volt im Römer, Frankfurt am Main Johannes Lauterwald, Die Grünen im Römer, Frankfurt am Main Sunhild Pfeiffer, Leitung Frankfurter Bläserschule, Frankfurt am Main Dr. Marco Popp, Konservator, Denkmalamt, Stadt Frankfurt am Main Hans-Jürgen Sasse, SPD im Römer, Frankfurt am Main Nils Schalk, Stadtplanungsamt, Frankfurt am Main Hermia Schlichtmann, Domkantorin, Leitung Frankfurter Domsingschule und Knabenchor, Frankfurt am Main Michael Weber, Ortsvorsteher, Ortsbeirat I, Frankfurt am Main Johannes Wilhelmi, Frankfurter Domsingschule Dr. Maria Wüllenkemper, Oberkonservatorin, Landesamt für Denkmalpflege Hessen, Wiesbaden Christian Zimmerli, Düsseldorf, Raumakustik |





















