
Exponate aus sechs Jahrtausenden und allen Erdteilen im Deutschen Ledermuseum
Die Stadt Offenbach am Main lobt einen nichtoffenen interdisziplinären Realisierungswettbewerb gemäß den Richtlinien der RPW 2013 aus.
Gegenstand des Wettbewerbs
Das Deutsche Ledermuseum (DLM) in Offenbach am Main ist das einzige Museum, das anhand von umfangreichen Objektbeständen die Herstellung, Bearbeitung und Verwendung von Leder und artverwandten Materialien dokumentiert, präsentiert und vermittelt. Es gibt mit diesem Sammlungsinhalt und mit dieser Qualität insbesondere an historischen Objekten kein vergleichbares Museum auf der Welt. In jüngster Zeit wurde die Sammlung gezielt auch für Exponate aus neuen, alternativen Materialien wie vegane oder recycelbare Stoffe geöffnet.
Gegenwärtig zeugen über 30.000 Objekte von der globalen Verwendung und der vielfältigen kulturhistorischen Bedeutung des Werkstoffs Leder in verschiedenen Epochen und Kulturen. Die Exponate stammen aus sechs Jahrtausenden und allen Erdteilen: von Europa, Amerika, Afrika und Asien sowie den Polarregionen. Mit der international bedeutenden Sammlung, die Gebrauchs- und Luxusgegenstände vom Kunsthandwerk und Design über Mode bis hin zu Objekten der Alltagskultur umfasst, besitzt das DLM ein klares Alleinstellungsmerkmal unter den Museen weltweit.
Aufgrund eines seit Jahrzehnten andauernden finanziell bedingten Sanierungsstaus entspricht der Gebäudezustand des DLM keinen aktuellen Standards mehr und bedarf dringend einer baulichen, haustechnischen sowie energetischen Sanierung. So sind Ausstellungsflächen und Depots aus konservatorischer Sicht stark veraltet und genügen nicht mehr den Ansprüchen, die an ein Museum des 21. Jahrhunderts gestellt werden. Im Zusammenhang eines Direktionswechsels Ende 2014 wurden erste Maßnahmen ergriffen: Große Teile der veralteten Ausstellungspräsentation sind aus diesem Grund in den letzten Jahren abgebaut bzw. geschlossen worden. Der dringend erforderliche inhaltliche Wandel wurde schrittweise mit einzelnen Projekten und Ausstellungen eingeleitet, die bei Publikum, Fachwelt und Presse sehr positiv aufgenommen werden.
Ziel des Wettbewerbs ist die strukturelle und inhaltliche Neukonzeption des DLM, die eine energetische Sanierung des Gebäudes miteinbezieht und eine durchgängige Barrierefreiheit herstellt. Es soll eine zukunftsfähige Aufbewahrung und Präsentation der Sammlung, eine funktionsbezogene Nutzungsverteilung sowie eine klare Besucherführung erreicht werden. Ebenso die Schaffung einer kontrollierten Be- und Entlüftung für konstante raumklimatische Bedingungen, eines objektschonenden Beleuchtungssystems sowie museumsgerechter Lagerungsmöglichkeiten. Die dringend erforderliche Neukonzeption sieht vor, dass das Museum eine verringerte Dauerausstellungsfläche, vergrößerte Wechselausstellungsflächen, ein Schaudepot sowie Depotflächen und Räumlichkeiten für ein breit aufgestelltes Vermittlungsprogramm erhält.
Im November 2024 ist das Preisgericht zusammengekommen, und hat drei Preise sowie zwei Anerkennungen verliehen
- 1. Preis (59.000 Euro): Rustler Schriever Architekten PartG mbB, Dipl.-Ing. Architektin BDA Pia Maier Schriever, Prof. Dipl.-Ing. Architekt BDA Juergen Rustler mit Levin Monsigny Landschaftsarchitekten GmbH, Dipl.-Ing. (FH) Landschaftsarchitektin Martina Levin, beide Berlin
- 2. Preis (37.000 Euro): Knoche Architektur Part GmbB, Prof. Dipl.–Ing. Freier Architekt BDA Christian Knoche, Leipzig mit Eger & Partner Landschaftsarchitekten BDLA, Dipl.-Ing. Freier Landschaftsarchitekt BDLA Franz-Josef Eger, Augsburg
- 3. Preis (23.000 Euro): KSP ENGEL GmbH, Dipl.-Ing. S.M. Arch. / MIT, Architekt BDA Jürgen Engel, Frankfurt am Main mit studio grüngrau GmbH, Prof. Dipl.-Ing. (FH) Landschaftsarchitekt Thomas Fenner, Düsseldorf
- Anerkennung (15.250 Euro): wulf architekten gmbh, Architekt Prof. Dipl.-Ing. Tobias Wulf mit bäuerle landschaftsarchitektur + stadtplanung, Freier Landschaftsarchitekt und Freier Stadtplaner BDLA Hannes Bäuerle M.Sc., beide Stuttgart
- Anerkennung (15.250 Euro): kbnk Architekten GmbH, Dipl.-Ing. Architekt Franz-Josef Nähring, Hamburg mit BHF Landschaftsarchitekten GmbH, Landschaftsarchitekt Ulrich Franke, Schwerin
Preisträger in der Übersicht
1. Preis
Rustler Schriever Architekten PartG mbB mit Levin Monsigny Landschaftsarchitekten GmbHAnerkennung
wulf architekten gmbh mit bäuerle landschaftsarchitektur + stadtplanung2. Preis

Anerkennung

3. Preis

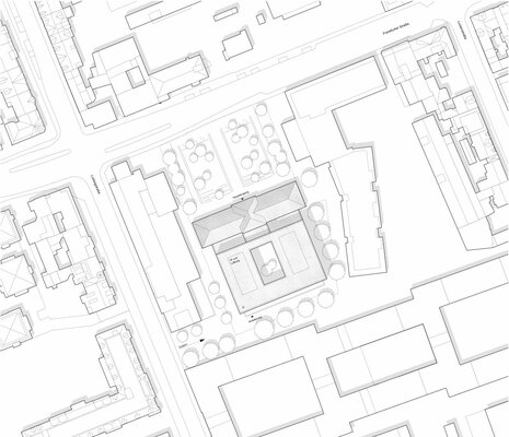
1. Preis
Insgesamt handelt es sich bei diesem Beitrag um eine auf raffinierte Weise einfache Antwort auf die komplexe Aufgabenstellung, die mit struktureller Klarheit und der innenräumlichen Verknüpfung von Alt und Neu dem Ledermuseum eine neue Identität verleihen kann.
Auszug aus dem Protokoll der Preisgerichtssitzung zum 1. Preisträger
2. Preis
3. Preis
Anerkennung
Anerkennung
Steckbrief
| Wettbewerbstitel | Nichtoffener Realisierungswettbewerb für die Planungsleistungen Objektplanung Gebäude und Freianlagen „Deutsches Ledermuseum“, Offenbach am Main |
|---|---|
| Auslober | Stadt Offenbach am Main, Amt für Planen und Bauen, Bereich Hochbaumanagement, Berliner Straße 60, Offenbach am Main |
| Wettbewerbsmanagement | RiegerArchitektur Partnerschaft freier Architekten mbB, Rieger Lehner Steinborn, Hainweg 5, Dresden |
| Teilnehmer | Architekt*innen sowie Landschaftsarchitekt*innen |
| Beteiligung | 19 Arbeiten Vorab ausgewählt wurden: Brückner & Brückner Architekten, Würzburg und realgrün Landschaftsarchitekten, München HoskinsArchitects, Berlin und guba+sgard Landschaftsarchitekten, Berlin Rustler Schriever Architekten, Berlin und Levin Monsigny Landschaftsarchitekten GmbH, Berlin The Next Enterprise, Wien und GM 013 Landschaftsarchitektur, Berlin studio NOUN, Zürich und Vogt Landschaftsarchitekten AG, Zürich |
| Fachpreisrichter | Prof. Wolfang Lorch, Architekt BDA, Frankfurt (Vorsitz) |
| Sachpreisrichter | Dr. Inez Florschütz, Deutsches Ledermuseum, Museumsdirektorin, Offenbach am Main Sabine Leithäuser, Stadt Offenbach, Vorsitzende Ausschuss für Umwelt, Stadtplanung und Verkehr (USV), Stadtverordnete, Offenbach am Main Prof. Dr. Ing. Winfried Nerdinger, Architekturhistoriker, Senatsmitglied des Deutschen Ledermuseums, München Paul-Gerhard Weiß, Stadt Offenbach, Stadtrat, Dezernat IV, Offenbach am Main Ulrike Kiesche Anna Heep, Stadt Offenbach, Baudirektorin, stellvertretende Leitung Amt für Planen und Bauen, Offenbach am Main (Stellvertretung) Simon Valerius, Stadt Offenbach, Ltd. Baudirektor, Leitung Amt für Planen und Bauen, Offenbach am Main (Stellvertretung) Dr. Ralph Philipp Ziegler, Stadt Offenbach, Leitung Kulturamt, Offenbach am Main (Stellvertretung) |
| Sachverständige | Hannah Haag Sabine Gebhardt, S.A.N. Beratende Bauingenieure GmbH, Beratung Tragwerk, Darmstadt Kai Michel, Archicprocess, Beratung Nachhaltiges Bauen, Dresden Joachim Huber, Prevart GmbH, Depotplanung, Winterthur Sonja Stuckmann, Stadt Offenbach, Magistratsdirektorin, Leitung Bauaufsichtsamt, Offenbach am Main Claire Wiersch Stefanie Stockmann, Stadt Offenbach, Referatsleitung Stadtplanung, Amt für Planen und Bauen, Offenbach am Main Alisa Jarkov, Stadt Offenbach, Fachreferentin Hochbaumanagement, Amt für Planen und Bauen, Offenbach am Main Till Förster, Stadt Offenbach, Fachreferent Hochbaumanagement, Amt für Planen und Bauen, Offenbach am Main Christoph Russ, Stadt Offenbach, Referatsleitung Freiraumplanung und Stadtgrün, Amt für Planen und Bauen, Offenbach am Main Karl-Heinz Speer, Stadt Offenbach, ehemals Leitung des vorbeugenden Brandschutzes, Offenbach am Main Ronja Rothweiler Claudia Schneider, baumcon.Ltd, Projektsteuerung im Auftrag der OPG, Wiesbaden |





















