
Entwicklung und Umgestaltung im Stadtteil Wehlheiden
Die Stadt Kassel lobt einen nichtoffenen interdisziplinären städtebaulich-freiraumplanerischen Wettbewerb mit Ideenteilen in zwei Phasen und mit vorangestelltem Bewerbungsverfahren gemäß den Richtlinien der RPW 2013 aus.
Gegenstand des Wettbewerbs
Die Stadt Kassel beabsichtigt die Entwicklung und Umgestaltung des Georg-Stock-Platzes im Stadtteil Wehlheiden. Der heutige Zustand bildet eine Brachfläche inmitten des Stadtteils, dem historischen Ortskern, und bleibt in seinem Erscheinungsbild und mit seinen temporären Nutzungen weit unter den städtebaulichen, freiräumlichen und funktionalen Potenzialen zurück.
Von großer Bedeutung ist neben der Um- und Neugestaltung die städtebauliche Neuordnung und Arrondierung. Hierzu soll im Rahmen des Wettbewerbs ausgelotet werden, wo und in welchem Maß eine hochbauliche Fassung mit Integration einer multifunktionalen Freifläche des Platzes aus räumlichen und funktionalen Gründen (z. B. aus Belangen des Lärmschutzes) sinnvoll ist. In alle Überlegungen einzubeziehen sind die verkehrlichen Rahmenbedingungen, die anspruchsvolle Topografie, die Umwelt- und Freiraumbelange sowie die vielfältigen Nutzungsansprüche.
Im Januar 2022 ist das Preisgericht zusammengekommen und hat zwei Preise verliehen:
- 1. Preis (18.500 Euro): foundation 5+ landschaftsarchitekten bdla Achterberg Herz Rohler Weingart PartGmbB, Prof. Dr.-Ing. Hans-Peter Rohler, Landschaftsarchitekt BDLA / Architektur + Städtebau Bankert, Linker & Hupfeld, Dipl.-Ing. Michael Linker, beide Kassel
- 2. Preis (11.500 Euro): POLA Landschaftsarchitekten GmbH, Jörg Michel Garten- und Landschaftsarchitekt (Diplom-Ingenieur) / STADT LAND FLUSS Städtebau und Stadtplanung, J. Miller Stevens Dipl.Ing. Stadtplaner BDA, SRL, beide Berlin
Preisträger in der Übersicht
1. Preis
foundation 5+ landschaftsarchitekten bdla Achterberg Herz Rohler Weingart PartGmbB/Architektur + Städtebau Bankert, Linker & Hupfeld2. Preis
POLA Landschaftsarchitekten GmbH/STADT LAND FLUSS Städtebau und Stadtplanung1. Preis
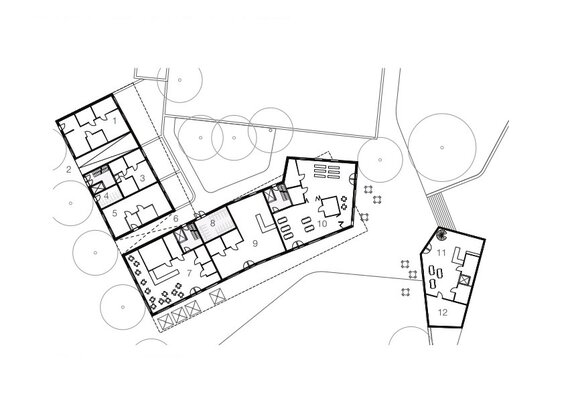
Die Arbeit überzeugt mit einer dem Ort angemessenen Dichte und Gestaltung sowie mit einem ausgewogenen Verhältnis von Bebauung, öffentlichen und privaten Freiflächen. Sie schließt in ihren Proportionen und ihrer Gliederung sehr gut an die Umgebungsbebauung an. Die Wohn- und gewerblichen Nutzungen, insbesondere auch das Jugendzentrum, sind richtig platziert und in sich schlüssig organisiert.
Auszug aus dem Protokoll der Preisgerichtssitzung zum 1. Preisträger
2. Preis
Steckbrief
| Wettbewerbstitel | Städtebaulich-freiraumplanerischer Realisierungswettbewerb mit Ideenteil Georg-Stock-Platz, Kassel |
|---|---|
| Auslober | Stadt Kassel, documenta-Stadt, Obere Königsstraße 8, Kassel |
| Wettbewerbsmanagement | ANP Architektur- und Planungsgesellschaft mbH, Hessenallee 2, Kassel |
| Teilnehmer | Stadtplaner*innen und Landschaftsarchitekten*innen in zwingender gegenseitiger Arbeitsgemeinschaft |
| Beteiligung | 5 Arbeiten |
| Fachpreisrichter | Prof. em. Dr. Franz Pesch, Architekt und Stadtplaner, Dortmund (Vorsitz) Ingrid Liebald, Landschaftsarchitektin, München Christof Nolda, Architekt und Stadtplaner, Dezernent für Stadtentwicklung, Bauen und Umwelt der Stadt Kassel Till Rehwaldt, Landschaftsarchitekt, Dresden Gregor Bäumle, Architekt und Stadtplaner, Darmstadt (Stellvertretung) Volker Mohr, Leiter Amt für Stadtplanung, Bauaufsicht und Denkmalschutz der Stadt Kassel (Stellvertretung) Günter Sandmann, Landschaftsarchitekt, Kassel (Stellvertretung) |
| Sachpreisrichter | Prof. Christian Kopetzki, Stadtplaner, Kassel Dr. Anja Starick, Leiterin Umwelt- und Gartenamt der Stadt Kassel Martin Spangenberg, stellv. Amtsleiter, Liegenschaftsamt der Stadt Kassel Volker Lange, Umwelt- und Gartenamt der Stadt Kassel / Leitung Abteilung Freiflächenbau (Stellvertretung) Ines Schulz, Landschaftsarchitektin, Kassel (Stellvertretung) |
| Sachverständige | Heiko Büsscher, Amt für Stadtplanung, Bauaufsicht und Denkmalschutz der Stadt Kassel / Leitung Abteilung Stadtplanung Katja Block, Amt für Stadtplanung, Bauaufsicht und Denkmalschutz der Stadt Kassel / Abteilung Stadtplanung Fabian Schäfer, Amt für Stadtplanung, Bauaufsicht und Denkmalschutz der Stadt Kassel / Abteilung Stadtplanung Tanja Mehls, Amt für Stadtplanung, Bauaufsicht und Denkmalschutz der Stadt Kassel / Abteilung Bauaufsicht Hannah Koch, Amt für Stadtplanung, Bauaufsicht und Denkmalschutz der Stadt Kassel / Abteilung Denkmalschutz Heiko Lehmkuhl, Straßenverkehrs- und Tiefbauamt der Stadt Kassel / Leitung Abteilung Mobilität Manfred Merz, Leiter des Bauverwaltungsamts der Stadt Kassel Judith Osterbrink, Leiterin Jugendamt der Stadt Kassel Anna Wienhausen, Ortsvorsteherin Wehlheiden, Kassel Norbert Sprafke, Mitglied Ortsbeirat Wehlheiden, Kassel Michael Maschke, Jugendräume Wehlheiden / Mitglied Lokale Partnerschaft „Alter Ortskern Wehlheiden“ Britta Rose, 2. Vorsitzende Kirmesgemeinschaft Turngemeinde Wehlheiden e. V. Constantin Mossgraber, Vertreter Eigentümergemeinschaft Schönfelder Straße 18, München |











