
Stadt- und Kreisarchiv mit Quartiersplatz in Bad Hersfeld
Die Kreisstadt Bad Hersfeld lobt einen einphasigen, nicht offenen architektonischen hochbaulichen Realisierungswettbewerb nach RPW 2013 aus.
Gegenstand des Wettbewerbs
Im Ergebnis des ISEK (Integrierte städtebauliche Entwicklungskonzepte in der Städtebauförderung) für das Stadtumbaugebiet ‘Östliche Kernstadt‘ wird seitens der Stadt Bad Hersfeld eine grundlegende Aufwertung des Quartiers ‘Antoniengasse‘ verfolgt. Wesentliche Ziele sind die Optimierung der Erschließung, die energetische Sanierung von Gebäuden, das Setzen neuer Nutzungsimpulse (u.a. im Bereich des brachgefallenen Herkulesmarktes) und die Aufwertung des öffentlichen Raums. Der geplante Neubau eines Stadt-und Kreisarchivs und die Schaffung eines Quartiersplatzes in unmittelbarer Umgebung nehmen hierbei eine Schlüsselrolle ein.
Zur Sicherstellung einer integrierten und zukunftsweisenden, funktional, gestalterisch und wirtschaftlich qualitätsvollen Planung beabsichtigte die Kreisstadt Bad Hersfeld für den Neubau des Archivs sowie eines Quartiersplatzes in unmittelbarer Umgebung einen nicht offenen Realisierungswettbewerb nach RPW 2013 auszuloben.
Das Raumprogramm des Stadt-und Kreisarchivs umfasst ca. 1.226 qm Nutzfläche zuzüglich ca. 340 qm Verkehrsfläche.
Im Juni 2019 ist das Preisgericht zusammengekommen und hat einen 1. Preis, zwei 3. Preise und zwei Anerkennungen verliehen:
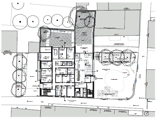
- 1. Preis (12.400 Euro): TPMT Architekten, Berlin
- 3. Preis (6.200 Euro): Peter Zirkel Gesellschaft von Architekten mbH, Dresden
- 3. Preis (6.200 Euro): SAA Schweger Architekten GmbH, Hamburg
- Anerkennung (3.100 Euro): Angela Fritsch Architekten, Seeheim Jugenheim
- Anerkennung (3.100 Euro): Kuckert Architekten BDA, Münster
Preisträger in der Übersicht
1. Preis
TPMT ArchitektenAnerkennung
Angela Fritsch Architekten3. Preis
Peter Zirkel ArchitektenAnerkennung
Kuckert Architekten3. Preis
SAA Schweger Architekten1. Preis
Über die gekonnte Einfügung des Neubaus entsteht ein unerwartet großzügiger öffentlicher Raum. Insbesondere der neue große Platz in der Innenstadt wird als Geschenk an die Stadt Bad Hersfeld gesehen.
Auszug aus dem Protokoll der Preisgerichtssitzung zum 1. Preisträger
3. Preis
3. Preis
Anerkennung
Anerkennung
Steckbrief
| Wettbewerbstitel | Architektonischer Realisierungswettbewerb Stadt- und Kreisarchiv mit Quartiersplatz, Bad Hersfeld |
|---|---|
| Auslober | Kreisstadt Bad Hersfeld |
| Wettbewerbsmanagement | Freischlad + Holz, Darmstadt |
| Teilnehmer | Architekt*innen |
| Beteiligung | 23 Arbeiten |
| Fachpreisrichter | Prof. Dipl.-Ing. M. Arch. Felix Waechter (Vorsitzender) Dipl. Ing. Jörg Sturm Dipl. Ing. Tobias Mann Dipl. Ing. Marie Theres Deutsch (stellv. Fachpreisrichter) |
| Sachpreisrichter | Thomas Fehling, Bürgermeister |
| Sachverständige | Dr. Sebastian Kraffzig, Leiter Fachdienst Interkommunales Archivwesen |
















