
Neubau einer 8-gruppigen Kindertagesstätte in der Kirchstraße in Pohlheim
Der Magistrat der Stadt Pohlheim lobt einen nicht offenen Realisierungswettbewerb nach RPW 2013 aus.
Gegenstand des Wettbewerbs
Der Magistrat der Stadt Pohlheim plant den Neubau der Kindertagesstätte „Kita Sonnenschein“ in der Kirchstraße 2a.
Für die Ausrichtung auf zukünftige Entwicklungen soll ein Neubau für acht Gruppen entstehen; vier Gruppen aus der Übernahme der bestehenden Kita und vier neue. Durch den Neubau erfahren die vorhanden Gruppen der Kita Kirchstraße eine langfristige Verbesserung der Räumlichkeiten sowie eine Erhöhung der Betreuungsqualität. Ziel des Wettbewerbs ist es die räumlichen Aufteilungen basierend auf die aktuellen pädagogischen Anforderungen zu optimieren. Diese fließen schon in die Entwurfsplanung mit ein. Die vorgesehene Grundstücksteilfläche mit ca. 5.200 qm ist dabei groß genug, um einer acht-gruppigen Kita Platz zu bieten.
Anlass für den Neubau ist der Bedarf an zusätzlichen Kita-Plätzen. Gefördert wird das Projekt aus Mitteln des Investitionsprogrammes Kinderbetreuungsfinanzierung 2018-20 des Bundes. Das Gesamtprojekt wird voraussichtlich ca. 2.700 qm Nutzungsfläche umfassen.
Im Juni 2020 ist das Preisgericht zusammengekommen und hat einen 1. Preis, zwei 3. Preise sowie zwei Anerkennungen verliehen:
- 1. Preis (15.000 Euro): Schaltraum Dahle-Dirumdam-Heise, Partnerschaft von Architekten mbB, Hamburg
- 3. Preis (10.000 Euro): Atelier Kaiser Shen Architekten PartGmbB, Stuttgart
- 3. Preis (10.000 Euro): ARCHITEKTEN STEIN HEMMES WIRTZ, Frankfurt am Main
- Anerkennung (3.000 Euro): Klaus Leber Architekten BDA, Darmstadt
- Anerkennung (3.000 Euro): Fa. atelier coa, Stuttgart
Preisträger in der Übersicht
1. Preis

Anerkennung

3. Preis

Anerkennung

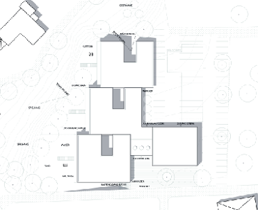
1. Preis
Die Arbeit besticht mit ihrem spielerischen Umgang der Aneinanderreihung ortstypischer Hauszeilen. Die ein- bis zweigeschossige Bauweise wird geschickt mit der Hangsituation verknüpft. Die Abfolge der einzelnen Baukörper folgt logisch der Grundstückskontur und lässt den einzelnen Gruppenbereichen genügend Raum zur Entfaltung.
Auszug aus dem Protokoll der Preisgerichtssitzung zum 1. Preisträger
3. Preis
3. Preis
Anerkennung
Anerkennung
Steckbrief
| Wettbewerbstitel | Nichtoffener Realisierungswettbewerb für den Neubau einer Kindertagesstätte in Pohlheim |
|---|---|
| Auslober | Magistrat der Stadt Pohlheim |
| Wettbewerbsmanagement | GRÜNINGER ARCHITEKTEN BDA Grüninger | Muntermann PartG mbB, Darmstadt |
| Teilnehmer | Architekt*innen |
| Beteiligung | 17 Arbeiten Vorab wurden eingeladen: Döring Dahmen Joeressen Architekten, Düsseldorf Schmees | Wagner Dipl.-Ing. Architekten BDA, Gießen Schmitt & Kollegen Planungsgesellschaft mbH, Gießen |
| Fachpreisrichter | Gerd Kaut, Architekt, Marburg (Vorsitz) Prof. Karin Damrau, Architektin, Wiesbaden/Köln Alexander Ehrenspeck, Architekt, Fernwald Prof. Jürgen Hauck, Architekt, Gießen/Würzburg Henning Pretzsch, Architekt, Darmstadt (stellv. Fachbreisrichter) |
| Sachpreisrichter | Daniel Schepp, Fachbereichsleiter Bauen/Feuerwehrwesen |
| Sachverständige | Stadtverordnetenvorsteher Prof. Dr. Helge Stadelmann Mitglieder oder Vertreter der einzelnen Fraktionen: SPD: Horst Biadala Bündnis 90 / Die Grünen: Reimar Stenzel FW: Andreas Schuch FDP: Fabian Schäfer Mitarbeiter aus dem Kita-Bereich: Kita Leitung: Nadja Lang Kita-Miarbeiterin: Tanja Anders Mitarbeiter der Verwaltung: Bauamt: Ingo Wallbott u. Sabine Weil |















