
Stylepark am Peterskirchhof, Frankfurt am Main
Das Frankfurter Architekturbüro nkbak hat eine spannende Raumfigur aus dem Kontext heraus mit seinen Versatzstücken entwickelt, die in den Bestand nahezu übergeht, ohne an Eigenständigkeit zu verlieren.
Projektbilder
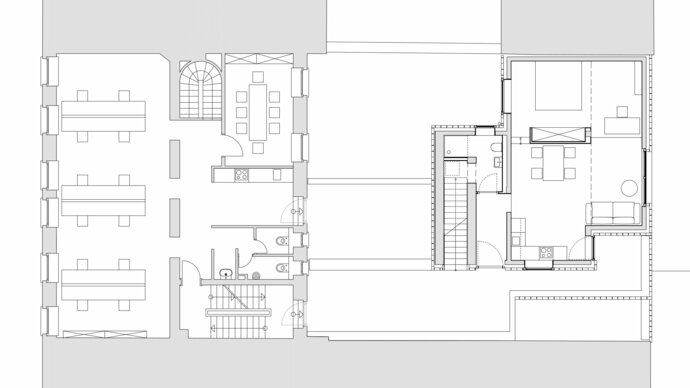
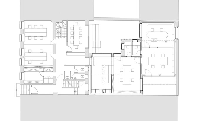
Pläne

nkbak

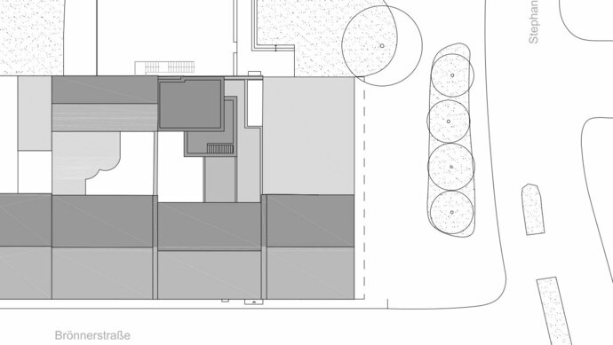
Trotz einer sehr komplexen Ausgangssituation mit denkmalgeschützter Friedhofsmauer und einem schwer zugänglichen Grundstück ist ein wunderschöner Bau entstanden. Trotz einer Verdichtung sind unterschiedliche Außenflächen erhalten geblieben, die die Lebens- und Arbeitsqualität signifikant steigern.
Robert Volhard, Gründer und Vorstand von Stylepark
Steckbrief
| Objekt | Stylepark am Peterskirchhof, Brönnerstraße 22, 60313 Frankfurt am Main |
|---|---|
| Bauvorhaben | Neubau und Erweiterung, Bauen im Bestand |
| Typologie | Wohn- und Geschäftshaus |
| Architekten | nkbak Nicole Kerstin Berganski, Andreas Krawczyk BDA, www.nkbak.de |
| Bauherren | Stylepark AG, Frankfurt am Main |
| Fertigstellung | 2019 |
| Auszeichnungen | Finalisten DAM Preis 2020 |





