
Ein neues Haus für die Gemeinschaft von Bettenhausen
Der Magistrat der Stadt Lich, vertreten durch Herrn Bürgermeister Dr. Julien Neubert, lobt einen einphasigen nichtoffenen Realisierungswettbewerb mit vorgeschaltetem Bewerbungsverfahren mit 20 Teilnehmern gemäß den Richtlinien der RPW 2013 aus.
Gegenstand des Wettbewerbs
Das bestehende Dorfgemeinschaftshaus (DGH) wurde 1969 von der eigenständigen Gemeinde Bettenhausen für 400 Einwohner erbaut und hat jahrzehntelang gute Dienste erwiesen. Gegenwärtig erfüllt es allerdings nicht mehr die heutigen Standards an Barrierefreiheit, Energieeinsparung, Brandschutz und Schallschutz für die Nachbarschaft. Auch die Größe des Saales und der Lagerflächen und die Parkplatzsituation sind unzureichend.
Aufgrund fehlender Umkleide- und Sozialräume am Feuerwehrgerätehaus wurde seitens der Stadt Lich ein Förderantrag gemäß Brandschutzförderrichtlinie 2020 beim Land Hessen für einen entsprechenden Anbau gestellt. Im Rahmen des Wettbewerbs soll eine geschickte Lösung zur Verbindung von DGH und Feuerwehrgerätehaus gefunden werden und das erforderliche Raumprogramm nachgewiesen werden, wobei sich eventuelle Synergien bei den Raumnutzungen durch die unmittelbare Nachbarschaft ergeben können. Die Fahrzeughalle mit seitlichem Anbau ist in die Planung zu integrieren.
Im Juli 2023 ist das Preisgericht zusammengekommen und hat drei Preise sowie eine Anerkennung verliehen:
- 1. Preis (11.000 Euro): LOA | Lars Otte Architektur, Dipl.-Ing. (FH) Architekt Lars Otte, Köln
- 2. Preis (8.250 Euro): studioinges Architektur und Städtebau GbR, Dipl.-Ing. Architektin AKB BDA Francesca Saetti, Dipl.-Ing. Architekt AKB BDA Prof. Thomas Bochmann, Dipl.-Ing. Architekt AKB BDA Stefan Schwirtz, Berlin
- 3. Preis (5.500 Euro): Meurer Generalplaner GmbH, Dipl.-Ing. Architektin Kristina Meurer, Prof. Dipl.-Ing. Architekt + Stadtplaner BDA Thomas Meurer, Frankfurt am Main
- Anerkennung (2.750 Euro): ARCHITEKTEN STEIN HEMMES WIRTZ Partnerschaftsgesellschaft mbB, Architekt BDA Roger Wirtz, Frankfurt am Main
Preisträger in der Übersicht
1. Preis

Anerkennung

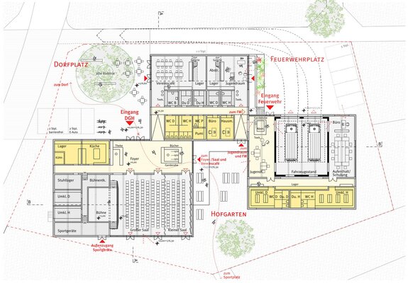
2. Preis
studioinges Architektur und Städtebau GbR, Berlin3. Preis

1. Preis
Der Entwurf besticht durch seine klare integrierende Form, die die Veranstaltungssäle in Form traditionell giebelständiger Gebäude als Kern des Gesamtensembles nahezu sakral in Szene setzt.
Auszug aus dem Protokoll der Preisgerichtssitzung zum 1. Preisträger
2. Preis
3. Preis
Anerkennung
Steckbrief
| Wettbewerbstitel | Realisierungswettbewerb Neubau eines Dorfgemeinschaftshauses Stadt Lich - Stadtteil Bettenhausen |
|---|---|
| Auslober | Magistrat der Stadt Lich, vertreten durch Herrn Bürgermeister Dr. Julien Neubert, Unterstadt 1, Lich |
| Wettbewerbsmanagement | PlanES Elisabeth Schade, Dipl.-Ing. Städtebauarchitektin und Stadtplanerin AKH, Alte Brauereihöfe, Leihgesterner Weg 37, Gießen |
| Teilnehmer | Architekt*innen / Innenarchitekt*innen, Innenarchitekt*innen sind in Zusammenarbeit mit Architekt*innen zulässig |
| Beteiligung | 17 Arbeiten Vorab zur Teilnahme aufgefordert wurde: shb architekten + ingenieure GbR, Gießen |
| Fachpreisrichter | Prof. Dirk Metzger, Dipl.-Ing. Architekt, Pohlheim (Vorsitz) Jürgen Juli, Dipl.-Ing. Architekt, Fulda Thomas Grüninger, Dipl.-Ing. Architekt, Darmstadt Pia Döll, Dipl.-Ing. (FH) Innenarchitektin, Frankfurt |
| Sachpreisrichter | Dr. Julien Neubert, Bürgermeister Stadt Lich Michael Rückel, Ortsvorsteher Bettenhausen Marco Römer, Fachbereichsleiter Bauservice und Stadtbrandinspektor Stadt Lich |
| Sachverständige | Herr Simon Thiel, Ortsbeirat Bettenhausen Carmen Körber, Ortsbeirat Bettenhausen Felix Meyer, Ortsbeirat Bettenhausen Michael Pieck, Stadtverordnetenvorsteher Jochen Müller, Wehrführer FW Bettenhausen Dirk Wagner, stv. Wehrführer FW Bettenhausen Dirk Schlösser, Fachdienstleiter Hochbau & Stadtentwicklung, Stadt Lich |














