
Ein Genusstempel in der Landschaft – neue regionale Baukultur in Hessen
Inmitten der malerischen Topografie des Rheingaus befindet sich in unmittelbarer Nähe zum Kloster Eberbach die Domäne Steinberg. Als bekannter Kellerei-Standort der Hessischen Staatsweingüter mit seinen alten, regionaltypischen Fachwerkbauten ist mit neuen Produktionsgebäuden eine zusätzliche Attraktion für die Region hinzugekommen.
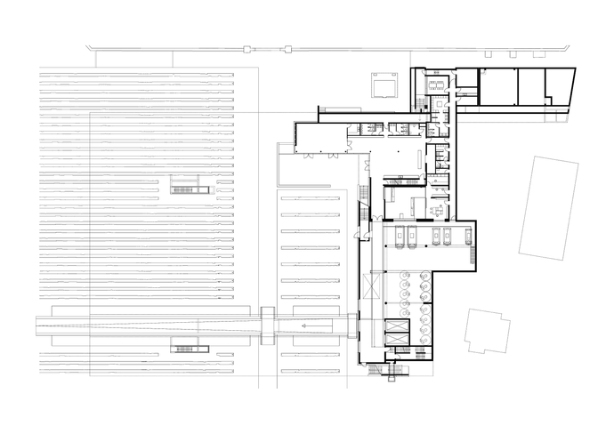
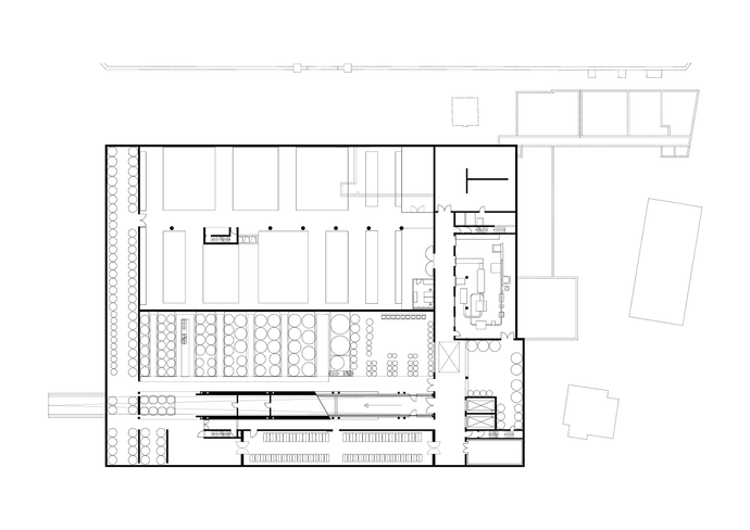
Die beiden Neubauten, bestehend aus Sekt- und Weinkellerei sowie einem multifunktional bespielbaren Betriebsgebäude, bilden mit den Bestandsbauten der Alten Schmiede, dem Wohnhaus und der alten Rebveredelungshalle, ein in seinen Produktionsabläufen aufeinander abgestimmtes Ensemble. Auf der neu gestalteten Hofanlage, der sogenannten „Weinpiazza“, finden alle Aktivitäten des Weinbaus – von der Einbringung der Trauben bis zum Weinfest – statt. Von der Weinpiazza werden alle Einzelgebäude erschlossen.
Ein Ort der angenehmen Maßstäbe
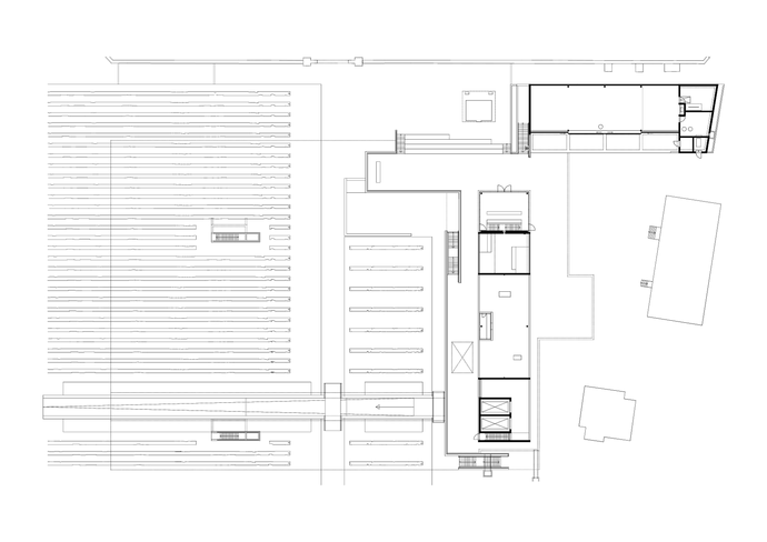
Auf einem massiv wirkenden Sockelbau mit rustikalem Bruchsteinverband ruht ein quer zur Hangkante ausgerichteter Neubauriegel aus Glas und Sichtbeton. Der repräsentative Aufbau beherbergt u.a. eine Degustation, Lichthof, Traubenanlieferung sowie Technikräume. Trotz monumentaler Geste erhält der Neubau anhand von großzügigen Öffnungen eine dem Ort angemessene Maßstäblichkeit. Die „großen Gebäudefenster“ geben Bildausschnitte der Landschaft sowie den Zutritt zur Terrasse und zum Weinberg frei.
Die eigentliche neue Kellerei entzieht sich mit ihrem Gesamtvolumen dem Blick des Besuchers. Sie verbirgt sich in Teilen im Sockelbau und größtenteils unter dem davor angelegten Weinberg. Das Vergraben der Kellerei in den Weinberg mildert dadurch den optischen Eingriff in die Kulturlandschaft und fügt sich harmonisch in seinen Kontext ein. Ein Wechselspiel aus malerischer Natur und strenger Geometrie oder traditionellen und modernen Materialien erzeugen eine besondere Gesamtwirkung Neuinterpretation regionaler Baukultur für den ländlichen Raum sowie für den Tourismus im Rheingau.
Pläne





Steckbrief
| Objekt | Kellerei am Steinberg, Kloster Eberbach, Domaine Steinberg 1, 65346 Eltville am Rhein |
|---|---|
| Bauvorhaben | Neubau |
| Typologie | Gewerbebau |
| Architekten | Friess + Moster Freie Architekten, Neustadt an der Weinstraße, www.friess-moster.de |
| Bauherren | Hessische Staatsweingüter Kloster Eberbach GmbH |
| Verfahrensart | Begrenzt offener Realisierungswettbewerb mit vorgeschaltetem Losverfahren, 2004/1. Preis |
| Fertigstellung | 2008 |
| Auszeichnungen | Tag der Architektur 2009 |








