
Seniorenwohnhaus St. Josef, Frankfurt am Main-Niederrad
Die Anpassungsfähigkeit des Wohnraums an die unterschiedlichen Lebenssituationen oder an die Erfordernisse einer immer älter werdenden Gesellschaft müssen heute bereits bei Planungsbeginn Berücksichtigung finden. Das Seniorenwohnhaus zeichnet sich durch Barrierefreiheit sowie durch eine klare und zurückhaltende Architektur aus, die eine flexible Nutzung und Anpassung ermöglicht.
Projektbilder
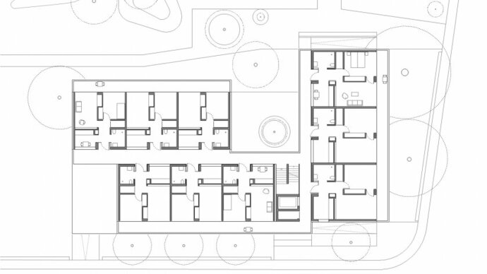
Pläne



Das Seniorenwohnhaus offenbart sich bei der Besichtigung als überaus lebendiger Organismus mit hervorragenden räumlichen und gestalterischen Qualitäten. Mögen die ungegliederten Balkone mit raumhohen Fenstern und die großen Öffnungen zu den Laubengängen gerade für ein Seniorenwohnheim ungewöhnlich erscheinen, so zeigen sich wichtige Aspekte der Kommunikation und des Lebens in der Gemeinschaft gerade hier.
Auszug aus dem Preisgerichtsprotokoll, Auszeichnung "Vorbildliche Bauten im Lande Hessen 2017"
Steckbrief
| Objekt | Seniorenwohnhaus St. Josef, Kniebisstraße 31, 60528 Frankfurt am Main |
|---|---|
| Bauvorhaben | Neubau |
| Typologie | Wohnbau |
| Architekten | WAECHTER + WAECHTER Architekten BDA, Darmstadt, www.waechter-architekten.de |
| Bauherren | Caritas Verband, Frankfurt am Main |
| Fertigstellung | 2015 |
| Auszeichnungen | Auszeichnung „Vorbildliche Bauten im Lande Hessen 2017“ |


