
Zeitgemäßer Schulbau im Einklang mit dem Denkmalschutz
Die Wissenschaftsstadt Darmstadt, vertreten durch den Eigenbetrieb Immobilienmanagement lobt einen einstufigen Realisierungswettbewerb für zwei Lose gemäß den Richtlinien der RPW 2013 aus.
Gegenstand des Wettbewerbs
Die Elly-Heuss-Knapp-Schule steht seit dem Jahr 2015 als typisches Beispiel der Architektur der 1950er und 1960er Jahre in Darmstadt unter Denkmalschutz. Sie leidet derzeit aufgrund von Veränderungen der Ganztagsbetreuung und des pädagogischen Konzepts unter einem deutlichen Platzmangel. So besteht ein Raumbedarf von 4 Klassen / Unterrichtsräumen mit Differenzierungsräumen sowie einem Ganztagsbereich. Für diese Räume soll ein Neubau errichtet werden. Zudem besteht ein hoher Sanierungsbedarf für die Bestandsgebäude. Die Maßnahme wird in 2 Lose gegliedert. Los 1 umfasst die denkmalgerechte Sanierung der Bestandsgebäude, Los 2 die Planung eines Erweiterungsbaus für den zusätzlichen Raumbedarf. Das Baufenster für den Neubauteil wurde mit der unteren Denkmalschutzbehörde sowie mit dem Grünflächenamt der Stadt Darmstadt abgestimmt. Ziel ist des Verfahrens ist es, für beide Lose optimale planerische Lösungen mit hoher funktionaler und gestalterischer Qualität zu finden, die sowohl den Aspekten des Denkmalschutzes als auch den Anforderungen eines zeitgemäßen Schulbaus gerecht werden.
Im November 2021 ist das Preisgericht zusammengekommen und hat drei Preise sowie eine Anerkennung für Los 1 verliehen:
- 1. Preis (25.000 Euro): Christl+Bruchhäuser GmbH Freie Architekten BDA, Dipl.-Ing. (TU) Michael Christl, Architekt BDA, Frankfurt am Main
- Ein 3. Preis (14.000 Euro): AV1 Architekten GmbH, Prof. Michael Schanné, Dipl.-Ing. Architekt, Kaiserslautern
- Ein 3. Preis (14.000 Euro): netzwerkarchitekten GmbH, Darmstadt
- Anerkennung (10.000 Euro): opus Architekten BDA, Andreas Sedler Architekt, Anke Mensing Architektin und Innenarchitektin, Darmstadt
Für Los 2 wurden zwei Preise sowie zwei Anerkennungen verliehen:
- 1. Preis (14.000 Euro): Christl+Bruchhäuser GmbH Freie Architekten BDA, Dipl.-Ing. (TU) Michael Christl, Architekt BDA, Frankfurt am Main
- 3. Preis (6.000 Euro): reichert schulze architekten PartGmbB, Dipl.-Ing. Freier Architekt BDA Jürgen Reichert, Stuttgart
- Anerkennung (4.500 Euro): opus Architekten BDA, Andreas Sedler Architekt, Anke Mensing Architektin und Innenarchitektin, Darmstadt
- Anerkennung (4.500 Euro): SSP AG, Dipl.-Ing. Architekt Thomas Schmidt, Bochum
Preisträger Los 1 in der Übersicht
1. Preis
Christl+Bruchhäuser GmbH Freie Architekten BDAAnerkennung

Ein 3. Preis
AV1 Architekten GmbHEin 3. Preis
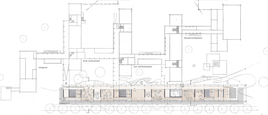
netzwerkarchitekten GmbH1. Preis
Der Umgang des Entwurfs mit dem denkmalgeschützten Bestandsgebäude wird als behutsam und angemessen gewürdigt. Die sehr klare baulich-strukturelle Aufteilung überzeugt in den Erdgeschossen und in den Obergeschossen. Insgesamt überzeugt der Entwurf für das Los 1 als einfacher, schlüssiger und wirtschaftlicher Ansatz, der mit geringen Eingriffen hohe funktionale und räumliche Qualitäten erzeugt.
Auszug aus dem Protokoll der Preisgerichtssitzung zum 1. Preisträger
Ein 3. Preis
Ein 3. Preis
Anerkennung
Preisträger Los 2 in der Übersicht
1. Preis
Christl+Bruchhäuser GmbH Freie Architekten BDAAnerkennung
SSP AG3. Preis
reichert schulze architekten PartGmbB freie architekten BDA und stadtplanerAnerkennung
opus Architekten BDA1. Preis
Der Arbeit gelingt es vorbildlich, den neuen Baukörper so einzufügen, dass er die Bestandsgebäude zugleich einfasst und ergänzt, ohne diese zu bedrängen oder zu beeinträchtigen. Kurze, direkte Wege sorgen für eine einfache Orientierung und selbstverständliche Verknüpfung mit dem Bestand.
Auszug aus dem Protokoll der Preisgerichtssitzung zum 1. Preisträger
3. Preis
Anerkennung
Anerkennung
Steckbrief
| Wettbewerbstitel | Realisierungswettbewerb Erweiterung und Sanierung Elly-Heuss-Knapp-Schule, Darmstadt |
|---|---|
| Auslober | Der Magistrat vertreten durch den Eigenbetrieb Immobilienmanagement Darmstadt, Fachbereich Hochbau, Mina-Rees-Straße 12, Darmstadt |
| Wettbewerbsmanagement | a:dk architekten datz kullmann, Schillerplatz 16, Mainz |
| Teilnehmer | Architekt*innen |
| Beteiligung | 16 Arbeiten |
| Fachpreisrichter | Prof. Kerstin Schultz, freie Architektin, Reichelsheim/Darmstadt (Vorsitz) Uwe Bellm, freier Architekt, Heidelberg Olaf Köhler, Architekt, Leiter Denkmalschutzbehörde, Wissenschaftsstadt Darmstadt Prof. Kristian Kaffenberger, freier Architekt, Reinheim Birgit König-Ehmke, Architektin, IDA, Wissenschaftsstadt Darmstadt (Stellvertretung) Simon Fischer, freier Architekt, Mannheim (Stellvertretung) Prof. Gero Quasten, freier Architekt, Darmstadt (Stellvertretung) |
| Sachpreisrichter | Holger Klötzner, Schuldezernent, Wissenschaftsstadt Darmstadt Wiltrud Lamm, Planungsreferentin, Schulamt, Wissenschaftsstadt Darmstadt Bettina Eydam, Schulleiterin, Elly-Heuss-Knapp-Schule, Darmstadt Katja Rödel, IDA, Wissenschaftsstadt Darmstadt (Stellvertretung) Joachim Lisowski, Betriebsleiter, IDA, Wissenschaftsstadt Darmstadt (Stellvertretung) |
| Sachverständige | Silke Schulz-Mandl, Staatliches Schulamt Hessen,Darmstadt Susanne Spallek, IDA, Wissenschaftsstadt Darmstadt |























