
Die neue Firmenzentrale der GASCADE Gastransport GmbH
Die GASCADE Gastransport GmbH lobt einen hochbaulichen Realisierungswettbewerb im anonymen Verfahren als Einladungswettbewerb gemäß den Richtlinien der RPW 2013 aus.
Gegenstand des Wettbewerbs
„Erdgas ist ein wichtiger Energieträger und große Teile des westeuropäischen Bedarfs werden über unser Leitungsnetz transportiert. Wir wissen um die damit einhergehende Verantwortung für die Sicherheit der Versorgung in Deutschland und den angrenzenden Staaten und wollen dieser jeden Tag gerecht werden.
Als Partner von Politik und Gesellschaft bringen wir unsere Positionen konstruktiv in den politischen Diskurs ein und helfen zum Beispiel, die Energiewende in Deutschland zu realisieren und den Wunsch der Bürger nach einer bezahlbaren und umweltschonenden Energieversorgung zu erfüllen. Wir transportieren dazu Erdgas, Biogas und in Zukunft – sobald diese Technik marktreif ist – auch erneuerbares Methan, das sich mit überschüssigem Ökostrom auf Basis von Wasser und CO2 aus der Luft herstellen lässt.“ (GASCADE)
Gegenstand des Wettbewerbs ist der Neubau der Firmenzentrale der GASCADE Gastransport GmbH mit ca. 350 Arbeitsplätzen und begleitender Infrastruktur in der Joseph-Beuys-Straße in Kassel.
Im November 2021 ist das Preisgericht zusammengekommen und hat drei Preise sowie eine Anerkennung verliehen:
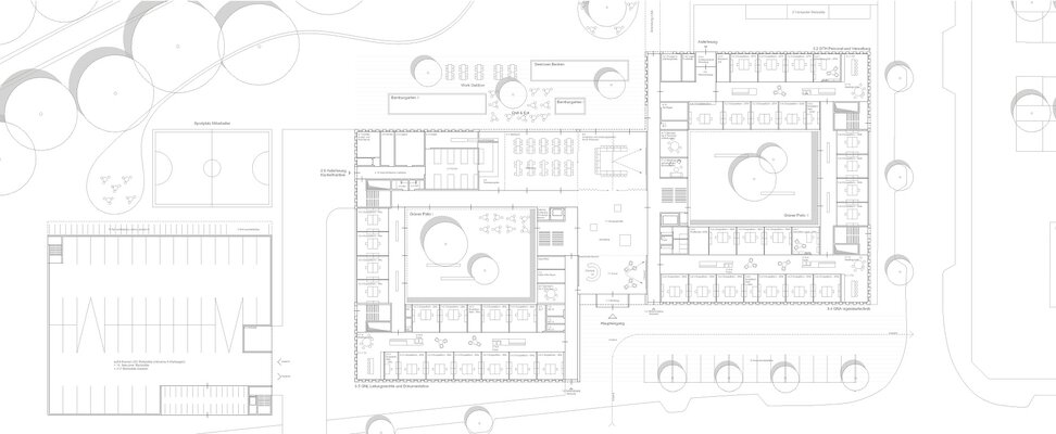
- 1. Preis (75.000 Euro): Störmer Murphy and Partners GbR, Dipl.-Ing. Architekt BDA Kasimir Altzweig, Hamburg
- 2. Preis (50.000 Euro): kadawittfeldarchitektur gmbh, Dipl.-Ing. Arch. BDA Gerhard Wittfeld, Aachen
- 3. Preis (30.000 Euro): SUPERGELB ARCHITEKTEN GmbH, Dipl. Ing. Architekt Jan Rübenstrunk, Köln
- Anerkennung (25.000 Euro): ATELIER 30 Architekten GmbH Fischer - Creutzig BDA, Dipl.-Ing. Architekt BDA MSc. Thomas Fischer, Dipl.-Ing. Architekt Ole Creutzig, Kassel
Preisträger in der Übersicht
1. Preis
Störmer Murphy and Partners GbRAnerkennung
ATELIER 30 Architekten GmbH2. Preis
kadawittfeldarchitektur gmbh3. Preis
SUPERGELB ARCHITEKTEN GmbH1. Preis
Alles in allem würdigt das Preisgericht die städtebaulichen und gebäudetypologischen Entscheidungen der Verfasser. Auch die Auseinandersetzung mit den Zielen und Inhalten von GASCADE und deren Übertragung in ein architektonisches Thema werden positiv bewertet.
Auszug aus dem Protokoll der Preisgerichtssitzung zum 1. Preisträger
2. Preis
3. Preis
Anerkennung
Steckbrief
| Wettbewerbstitel | Einladungswettbewerb Neubau GASCADE-Zentrale, Kassel |
|---|---|
| Auslober | GASCADE Gastransport GmbH, Kölnische Straße 108-112, Kassel |
| Wettbewerbsmanagement | ANP Architektur- und Planungsgesellschaft mbH, Hessenallee 2, Kassel |
| Teilnehmer | Architekt*innen |
| Beteiligung | 9 Arbeiten Es wurden eingeladen: ATELIER 30 Architekten GmbH, Kassel Baufrösche Architekten und Stadtplaner GmbH, Kassel HHS Planer + Architekten AG, Kassel ingenhoven architects gmbh, Düsseldorf kadawittfeldarchitektur gmbh, Aachen Meixner Schlüter Wendt, Frankfurt am Main RKW Architektur + Rhode Kellermann Wawrowsky GmbH, Düsseldorf schneider+schumacher Planungsgesellschaft mbH, Frankfurt am Main Störmer Murphy and Partners GbR, Hamburg SUPERGELB ARCHITEKTEN GmbH, Köln |
| Fachpreisrichter | Prof. Alexander Reichel, Architekt, Kassel (Vorsitz) Axel Jäger, Architekt, Leiter Amt Hochbau und Gebäudebewirtschaftung, Kassel Prof. Zvonko Turkali, Architekt, Frankfurt am Main Frank Züllich, Architekt, GASCADE Ulrike Pape, Architektin, Kassel (Stellvertretung) Karin Kellner, Architektin, Hannover (Stellvertretung) |
| Sachpreisrichter | Dr. Christoph von dem Bussche, Geschäftsführer GASCADE Dr. Igor Uspenskiy, Geschäftsführer GASCADE Volker Mohr, Amtsleiter Stadtplanung, Bauaufsicht und Denkmalschutz, Kassel (Stellvertretung) Rolf Wagner, Betriebsrat GASCADE (Stellvertretung) |
| Sachverständige | Anne Kirschbaum, Sachgebietsleitung Städtebauliche Planung Kassel West, Kassel Frank Hunstieger, GASCADE |


















