
Zwei neue Institutsgebäude für die Studierenden der THM
Das Land Hessen, vertreten durch das Hessische Ministerium der Finanzen in Abstimmung mit dem Hessischen Ministerium für Wissenschaft und Kunst und der Technischen Hochschule Mittelhessen, loben einen nichtoffenen Realisierungswettbewerb gemäß den Richtlinien der RPW 2013 aus.
Gegenstand des Wettbewerbs
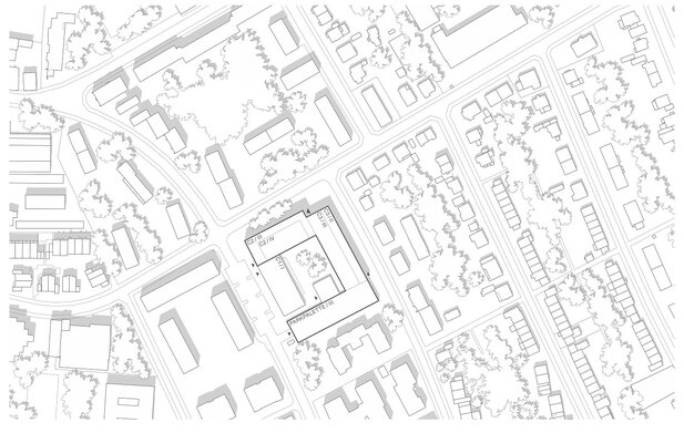
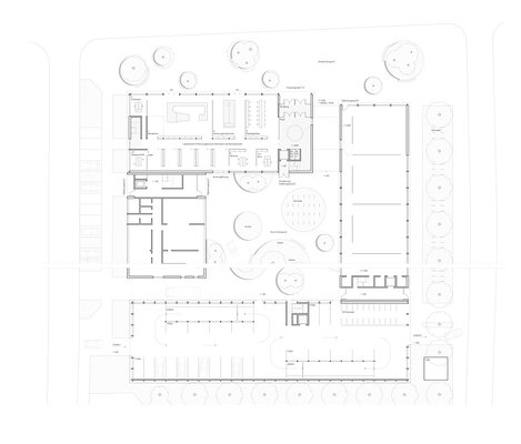
Die Technische Hochschule Mittelhessen plant für den Fachbereich Maschinenbau, Mechatronik und Materialtechnologie in Friedberg die Errichtung zwei neuer Institutsgebäude C2 und C3 sowie einer Parkpalette im Bereich der sogenannten "ehemaligen Housing Area" an der Karlsbader Straße, die dort gemeinsam mit dem Bestandsgebäude C1 den neuen C-Campus bilden werden. Die Umsetzung des Gebäudes C2 und einer Parkpalette, die Gegenstand des vorliegenden Wettbewerbs sind, erfolgt im Rahmen des Investitionsprogramms HEUREKA, Investitionsphase I und II. Mit dem Bauvorhaben soll zudem ein vorbildlicher Bau im Sinne von Ökologie und Nachhaltigkeit entstehen, der sich die THM und das Land Hessen verpflichtet sehen. Bei dem Neubau des Gebäudes C2 sollen daher innovative, wegweisende Ideen im Holzbau umgesetzt und die Breite der Anwendungsmöglichkeiten des nachwachsenden Rohstoffs Holz aufgezeigt werden.
Im März 2022 ist das Preisgericht zusammengekommen und hat drei Preise sowie zwei Anerkennungen verliehen:
- 1. Preis (60.000 Euro): REICHEL SCHLAIER ARCHITEKTEN GMBH Freie Architekten BDA, Prof. Elke Reichel Dipl.-Ing. Architektur, Prof. Peter Schlaier Dipl.-Ing. Architektur, Stuttgart
- 2. Preis (36.000 Euro): sdks architekten dummert sonek partner mbB, Michael Sonek Dipl.-Ing. Architekt BDA, Florian Theisinger M. Sc. Architekt, Amelie Walldorf M. Eng. Architekt, Darmstadt
- 3. Preis (24.000 Euro): Schulz und Schulz Architekten GmbH, Prof. Ansgar Schulz Dipl.-Ing. Architekt BDA DWB, Prof. Benedikt Schulz Dipl.-Ing. Architekt BDA DWB, Dominik Schürmann, Leipzig
- Anerkennung (15.000 Euro): Ackermann + Renner Architekten GmbH, Dipl.-Ing. (FH) M. Arch. Georg Ackermann, Architekt, Dipl.-Ing. Cornelia Renner, Architektin, Berlin mit architekturagentur Freudenberger - Grübnau - Egger - Hilt Freie Architekten und freie Innenarchitekten - PartGmbB, Stuttgart
- Anerkennung (15.000 Euro): Bär, Stadelmann, Stöcker Architekten + Stadtplaner Part GmbB, Friedrich Bär Dipl.-Ing. (FH), Architekt BDA, Bernd Stadelmann Dipl.-Ing. (FH), Architekt BDA, Rainer Stöcker Dipl.-Ing. (FH), Architekt BDA, Nürnberg
Preisträger in der Übersicht
1. Preis
REICHEL SCHLAIER ARCHITEKTEN GMBH Freie Architekten BDA, StuttgartAnerkennung

2. Preis

Anerkennung
Bär, Stadelmann, Stöcker Architekten und Stadtplaner PartGmbB, Nürnberg3. Preis

1. Preis
Der Baukörper überzeugt in seiner ruhigen Ästhetik, er ist feinstrukturiert und unaufgeregt. Der vorliegende Entwurf leistet in seiner Maßstäblichkeit und Angemessenheit sowie in seiner guten funktionalen Ausbildung und der sinnvollen Planung des Materials Holz einen überaus gelungenen Beitrag zur komplexen Fragestellung.
Auszug aus dem Protokoll der Preisgerichtssitzung zum 1. Preisträger
2. Preis
3. Preis
Anerkennung
Anerkennung
Steckbrief
| Wettbewerbstitel | Nichtoffener einphasiger hochbaulicher Realisierungswettbewerb Neubau des Technologiezentrums Gebäude C2 in Holz- oder Hybridbauweise mit einer Parkpalette und einem städtebaulichen Ideenteil, Friedberg |
|---|---|
| Auslober | Land Hessen, vertreten durch das Hessische Ministerium der Finanzen, Wiesbaden, vertreten durch Herrn Staatsminister Michael Boddenberg, vertreten durch den Landesbetrieb Bau- und Immobilien Hessen – Niederlassung Mitte, vertreten durch Herrn Stefan Diehl, in Abstimmung mit dem Hessischen Ministerium für Wissenschaft und Kunst, Wiesbaden vertreten durch Frau Staatsministerin Angela Dorn und der Technische Hochschule Mittelhessen, vertreten durch Herrn Präsidenten Prof. Dr. Matthias Willems |
| Wettbewerbsmanagement | scheuvens + wachten plus planungsgesellschaft mbh, Friedenstraße 18, Dortmund |
| Teilnehmer | Architekt*innen |
| Beteiligung | 16 Arbeiten |
| Fachpreisrichter | Ulrike Lauber, München/Berlin (Vorsitz) Volker Giezek, Dresden Sibylle Waechter, Darmstadt Johannes Kaufmann, Dornbirn Stefan Haub, Hessisches Ministerium der Finanzen, Wiesbaden Nicole Kerstin Berganski, Frankfurt Sebastian Burger, Hessisches Ministerium der Finanzen, Wiesbaden (Stellvertretung) Thomas Sternagel, Stuttgart (Stellvertretung) Jan Celo, Hessisches Ministerium der Finanzen, Wiesbaden (Stellvertretung) |
| Sachpreisrichter | Thorsten Schmidt, Hessisches Ministerium für Wissenschaft und Kunst, Wiesbaden Sophia von den Driesch, Hessisches Ministerium der Finanzen, Wiesbaden Dirk Metzger, Technische Hochschule Mittelhessen, Gießen Thomas Platte, LBIH, Zentrale, Wiesbaden Michael Müller, Wuppertal Meike Spies, Hessisches Ministerium für Wissenschaft und Kunst, Wiesbaden (Stellvertretung) Olaf Berger, Technische Hochschule Mittelhessen, Gießen (Stellvertretung) Karl-Hermann Krombach, LBIH, Zentrale Wiesbaden (Stellvertretung) |
| Sachverständige | Achim Vogelsberg, Technische Hochschule Mittelhessen (THM), Gießen Ute Ansion, Facility Management THM Nadine Balser, Facility Management THM Ahmet Ayhanci, Technische Hochschule Mittelhessen Martina Brill, Amt für Stadtentwicklung, Liegenschaften und Rechtswesen der Stadt Friedberg Ann Kathrin Magic, Planungsabteilung der Stadt Friedberg Andreas Förster, LBIH Niederlassung Mitte, Gießen Ingmar Goth, LBIH Niederlassung Mitte, Gießen Kirsi Miriam Jochem, LBIH Niederlassung Mitte, Gießen Carsten Bär, LBIH Niederlassung Mitte, Gießen Constantin Kiesel, LBIH Niederlassung Mitte, Gießen Matthias Bockenheimer, LBIH Niederlassung Mitte, Bad Nauheim Christoph Knickel, Landesbetrieb Bau und Immobilien Hessen, Zentrale, Wiesbaden Stefan Brückner, Landesbetrieb Bau und Immobilien Hessen, Zentrale, Wiesbaden René Stein, Beratender Ingenieur für Brandschutz, Droyßig |





















