
Neues Werkstattgebäude für die Theodor-Litt-Schule in Gießen
Die Stadt Gießen lobt einen einstufigen nichtoffenen Realisierungswettbewerb mit anschließendem Verhandlungsverfahren nach VgV gemäß den Richtlinien der RPW 2013 aus.
Gegenstand des Wettbewerbs
Die Theodor-Litt-Schule ist ein gewerblich-technisches berufliches Schulzentrum. Die bestehenden Werkstätten, gebaut 1964 und 1984, sind abgängig und können gemäß vorausgegangener Untersuchungen durch Umbau oder Sanierung nicht nachhaltig entwickelt werden.
Das neue Werkstattgebäude soll das pädagogische Konzept befördern und innovative Lern- und Arbeitsprozesse ermöglichen. Vom Wettbewerb erhofft sich die Stadt Gießen einen hinsichtlich moderner Pädagogik, umfassend verstandener Nachhaltigkeit und extrem kurzer Bauzeit klugen Entwurf.
Im Juli 2021 ist das Preisgericht zusammengekommen und hat drei Preise sowie eine Anerkennung verliehen:
- 1. Preis (26.000 Euro): Waechter + Waechter Architekten BDA PartmbB, Darmstadt
- 2. Preis (18.000 Euro): ZRS Architekten GvAmbH, Berlin
- 3. Preis (12.000 Euro): SEP I Architekten Bockelmann Klaus PartG mbB, Hannover
- Anerkennung (8.000 Euro): Birk Heilmeyer und Frenzel Gesellschaft von Architekten mbH, Stuttgart
Preisträger in der Übersicht
1. Preis

Anerkennung

2. Preis

3. Preis
SEP I Architekten Bockelmann Klaus PartG mbB1. Preis
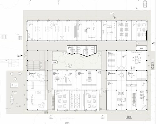
Der Neubau des Werkstattgebäudes der Theodor-Litt-Schule zeigt sich zurückhaltend modern, in einer eigenständigen Fassaden-Typologie in Holzbauweise und wird damit zum einem in die Zukunft weisenden Nachbarn des bestehenden Schulgebäudes. Der Entwurf überzeugt besonders in der kompakten Anordnung der Cluster. Die modulare, gerasterte Gestaltung der Fassade und die Lichtbänder im oberen Wandbereich erlauben eine flexible Nutzung der Werkstatt.
Auszug aus dem Protokoll der Preisgerichtssitzung zum 1. Preisträger
2. Preis
3. Preis
Anerkennung
Steckbrief
| Wettbewerbstitel | Nichtoffener hochbaulicher Realisierungswettbewerb Theodor-Litt-Schule in Gießen |
|---|---|
| Auslober | Stadt Gießen vertreten durch das Dezernat III, Berliner Platz 1, Gießen |
| Wettbewerbsmanagement | goedeking architekten bda, Schaumainkai 13, Frankfurt am Main |
| Teilnehmer | Architekt*innen |
| Beteiligung | 15 Arbeiten Vorab wurden eingeladen: Birk Heilmeyer und Frenzel Gesellschaft von Architekten mbH, Stuttgart SCHMEES I WAGNER Dipl.-Ing. Architekten BDA Partnerschaftsgesellschaft mbB, Gießen |
| Fachpreisrichter | Dipl.-Ing. Heiner Farwick, Architekt BDA Stadtplaner (Vorsitz) |
| Sachpreisrichter | Astrid Eibelshäuser, Stadträtin und Dezernentin Dipl.-Ing. Jutta Müller, Amtsleiterin Hochbauamt Michael Brumhard, Schulleiter Richard Spanke, stv. Schulleiter |













