
Neubau eines Multifunktionsgebäudes für die Bad Hersfelder Festspiele
Der Magistrat der Stadt Bad Hersfeld lobt einen nichtoffenen Realisierungswettbewerb mit Ideenteil für eine Gebäudeplanung im anonymen Verfahren mit vorangestelltem Bewerbungsverfahren gemäß den Richtlinien der RPW 2013 aus.
Gegenstand des Wettbewerbs
Die Infrastruktur der Festspiele ist heute über mehrere Standorte verteilt, die teilweise (insbesondere in Werkstatt- und Fundusnutzungen) den technischen und funktionalen Anforderungen nicht mehr genügen.
Aus diesem Grund soll ein Multifunktionsgebäude mit ca. 1.250 m² BGF errichtet werden, das Werkstätten, Probebühne, Büros und Infrastruktur aufnimmt. Ein Ideenteil soll die Möglichkeit zur städtebaulichen Arrondierung der Bebauung aufzeigen. Das Projekt wird direkt von der Bundesrepublik Deutschland gefördert.
Im März 2021 ist das Preisgericht zusammengekommen und hat drei Preise sowie zwei Anerkennungen verliehen:
- 1. Preis (17.000 Euro): PFP Planungs GmbH, Hamburg
- 2. Preis (13.000 Euro): habermann.decker.architekten PartGmbB, Lemgo
- 3. Preis (9.000 Euro): VON M GmbH, Stuttgart
- Anerkennung (3.000 Euro): NEW GbR, Köln
- Anerkennung (3.000 Euro): Schoener und Panzer Architekten BDA PartG mbB, Leipzig
Preisträger in der Übersicht
1. Preis
PFP Planungs GmbH, Hamburg2. Preis
habermann.decker.architekten PartGmbB, Lemgo3. Preis
VON M GmbH, StuttgartAnerkennung
NEW GbR, KölnAnerkennung
Schoener und Panzer Architekten BDA PartG mbB, Leipzig1. Preis
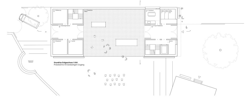
Die Arbeit besticht grundsätzlich durch ihre elegante und geschickte Baukörperkomposition im Stadtraum. Daraus entsteht ein wohltuendes Ensemble, das durch die erhaltene Linde, dem bestehenden Burschenhaus und der möglichen zukünftigen Erweiterung gefasst wird. Es handelt sich insgesamt um einen außergewöhnlichen, kreativen Entwurf, der sowohl den Werkstattcharakter betont, als auch die Multifunktionalität herausarbeitet.
Auszug aus dem Protokoll der Preisgerichtssitzung zum 1. Preisträger
2. Preis
3. Preis
Anerkennung
Anerkennung
Steckbrief
| Wettbewerbstitel | Realisierungswettbewerb mit Ideenteil Multifunktionsgebäude für die Bad Hersfelder Festspiele |
|---|---|
| Auslober | Magistrat der Stadt Bad Hersfeld vertreten durch die Wirtschaftsbetriebe der Stadt Bad Hersfeld GmbH, Weinstraße 16, Bad Hersfeld |
| Wettbewerbsmanagement | ANP Architektur- und Planungsgesellschaft mbH, Hessenallee 2, Kassel |
| Teilnehmer | Architekt*innen |
| Beteiligung | 21 Arbeiten |
| Fachpreisrichter | Prof. Helmut Kleine-Kraneburg, Architekt (Vorsitz) Frank Dorbritz, Architekt Johannes van Horrick, Architekt Thorsten Kock, Architekt Ulrike Pape, Architektin Prof. Berthold Penkhues, Architekt Matthias Foitzik, Architekt (Stellvertretung) |
| Sachpreisrichter | Manfred Balg, Hessisches Ministerium für Wissenschaft und Kunst |
| Sachverständige | Julia Hahn, Oberfinanzdirektion Nadja Speich, Vorsitzende Denkmalbeirat Niels Wetter, Schlösser und Gärten Hessen Torsten Wiegand, Stadtverwaltung Dietmar Wolf, Technischer Leiter Festspiele |
















