
Neubau einer Grundschule in Königstein - Hochtaunuskreis
Der Kreisausschuss des Hochtaunuskreises lobt einen nichtoffenen Realisierungswettbewerb für den Neubau einer vierzügigen Grundschule sowie einer Schulsporthalle in Königstein im Taunus nach RPW 2013 aus.
Gegenstand des Wettbewerbs
Die Stadt Königstein im Taunus ist ein Kurort im Hochtaunuskreis, befindet sich im Umland der Stadt Frankfurt am Main und hat ca. 16.500 Einwohner.
 Gegenstand des Verfahrens ist die Entwicklung eines Nutzungskonzeptes für den gesamten Schulbetrieb. Dies beinhaltet die Planung einer vierzügigen Grundschule mit Ganztagesbereich sowie einer Schulsporthalle mit den Sportflächendimensionen 15m x 27m.
Im November 2020 ist das Preisgericht zusammengekommen und hat vier Preise sowie drei Anerkennungen verliehen:
- 1. Preis (33.000 Euro): löhle neubauer Architekten BDA pmbb, Augsburg
 - 2. Preis (18.000 Euro): pussert kosch architekten, Dresden
 - 3. Preis (13.000 Euro): AV 1 Architekten GmbH, Kaiserslautern
 - 4. Preis (7.000 Euro): Lamott Lamott Architekten PartGmbB, Stuttgart
 - Anerkennung (3.000 Euro): wörner traxler richter planungsgesellschaft mbh, Frankfurt
 - Anerkennung (3.000 Euro): Bär, Stadelmann, Stöcker Architekten + Stadtplaner Part GmbB, Nürnberg
 - Anerkennung (3.000 Euro): Menzel / Kossowski Architekten, Darmstadt
 
Preisträger in der Übersicht
1. Preis

4. Preis

Anerkennung

2. Preis

Anerkennung

3. Preis

Anerkennung

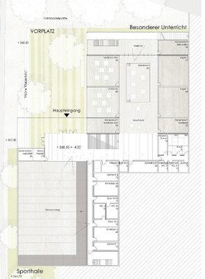
1. Preis
Die städtebauliche Idee leitet sich aus zwei ineinander verschachtelten, rechteckigen Gebäudekörpern ab, die auf selbstverständliche Weise eine gestaffelte Großform bilden. Diese Großform nimmt die Gebäudefluchten der angrenzenden Bebauung auf und fügt sich maßvoll in das städtebauliche Umfeld ein. Durch eine geschickte Ausbildung der die Baumasse der Turnhalle aufnehmenden Sockelzone erscheint das eigentliche Schulgebäude entlang der Wiesbadener Straße als ein aufgeständerter, lediglich dreigeschossiger Baukörper.
Auszug aus dem Protokoll der Preisgerichtssitzung zum 1. Preisträger
2. Preis
3. Preis
4. Preis
Anerkennung
Anerkennung
Anerkennung
Steckbrief
| Wettbewerbstitel | Nichtoffener Wettbewerb Realisierungswettbewerb Grundschule, Königstein - Hochtaunuskreis  |  		
|---|---|
| Auslober | Hochtaunuskreis - Fachbereich Hochbau, Bad Homburg v. d. Höhe | 
| Wettbewerbsmanagement | BSMF Beratungsgesellschaft für Stadterneuerung und Modernisierung mbH, Frankfurt am Main | 
| Teilnehmer | Architekt*innen | 
| Beteiligung | 25 Arbeiten Vorab wurden eingeladen: blfp architekten, Friedberg LS Architekten BDA Part GmbB, Traunstein menzel | kosswski architekten, Darmstadt plus+ bauplanungs GmbH, Neckartenzlingen wolfgang ott architekt, Kronberg  |  		
| Fachpreisrichter | Prof. Johann Eisele, freier Architekt, Darmstadt (Vorsitz) Prof. Thomas Bieling, freier Architekt, Kassel Joachim Klie, freier Architekt und Stadtplaner, Darmstadt Prof. Kerstin Schultz, freie Architektin, Reichelsheim-Laudenau Verena Trojan, freie Architektin, Darmstadt Kristin Dirschl, freie Architektin, Frankfurt am Main Jens Glatz, stellvertretender Fachbereichsleiter Hochbau, Hochtaunuskreis (stellv. Fachpreisrichter)  |  		
| Sachpreisrichter | Jürgen Banzer, Mitglied des Kreistags Leonhard Helm, Bürgermeister der Stadt Königstein Dr. Stephan Wetzel, Mitglied des Kreistags Christina Koch, Schulleiterin der Grundschule Königstein Götz Esser, Mitglied des Kreistags Anika-Kerstin Kurz, Stellvertretende Schulleiterin Grundschule Königstein (stellv. Sachpreisrichter) Dr. Stefan Naas, Mitglied des Kreistags (stellv. Sachpreisrichter) Norman Dießner, Mitglied des Kreistags (stellv. Sachpreisrichter)  |  		
| Sachverständige | Dr. Frank Ausbüttel, CDU, Vorsitzender des Ausschusses für Schule, Kultur, Sport und Freizeit Sascha Bastian, Fachbereich Schulen des Hochtaunuskreises Stefan Bouillon, Fachbereichsleiter Planen, Umwelt, Bauen der Stadt Königstein Carsten Filges, Grüne, Vorsitzender des Ausschusses für Bau, Planung, Verkehr und Umwelt Dr. Bastian Hirsch, Fachbereichsleiter Bauaufsicht des Hochtaunuskreis Christoph Marx, Fachbereich Brandschutz, Rettungsdienst und Katastrophenschutz des HTK Michael Jansen, Fachbereich Hochbau des Hochtaunuskreises Sonja Kupfer, Fachdienstleiterin Planen/Umwelt der Stadt Königstein Reiner Plomer, Fachbereich Hochbau des Hochtaunuskreises Dobroslawa Robinski, Bauaufsicht des Hochtaunuskreis, Sonderbauten Königstein  |  		






















