
Vollständiges Bildungsangebot unter einem Dach
Der Kreisausschuss des Landkreises Marburg-Biedenkopf lobt einen nichtoffenen Realisierungswettbewerb gemäß den Richtlinien der RPW 2013 aus.
Gegenstand des Wettbewerbs
Durch einen Erweiterungsbau an der Gesamtschule Ebsdorfergrund (GSE), im Ortsteil Heskem, plant der Landkreis Marburg-Biedenkopf den Standort baulich auf die Entwicklung der Schülerzahlen und zukünftiger pädagogischer Konzepte auszurichten.
Die Gesamtschule Ebsdorfergrund, kurz GSE, ist eine kooperative Gesamtschule des Landkreis Marburg-Biedenkopf. Sie bietet der Schülerschaft ein vollständiges, wohnortnahes Bildungsangebot im Ebsdorfergrund, aber auch weit über die Gemeindegrenzen hinaus. Auf einer Förderstufe aufbauend vereint die GSE die weiterführenden Schulformen (Hauptschule, Realschule, Gymnasium) sowie einen Förderschulzweig mit dem Förderschwerpunkt Lernen und sozial-emotionale Entwicklung unter einem Dach. Der vollständige Schulkomplex der GSE besteht aus mehreren Gebäuden, die die einzelnen Schulformen inkl. deren Verwaltung und Fachklassenbereiche beinhalten, sowie eines zusammenhängenden Baukörpers einer 3-Feld- und einer 1-Feld-Turnhalle. Zudem sind kleinere Gebäude der derzeitigen Mensa/Cafeteria und eine Hausmeisterwohnung, sowie Parkplatz-, Busverkehr- und Freiflächen für den Sport auf dem Grundstück der schulischen Nutzung untergebracht. Die Gesamtschule Ebsdorfergrund ist im Bereich der Förderstufe (5. und 6. Klasse) sechszügig entwickelt. Ab der Jahrgangsstufe 7 sind weiterführende Schulzweige zum Erwerb des Hauptschul- und qualifizierten Realschulabschlusses und des gymnasialen Zweigs bis zur Jahrgangsstufe 10 an der GSE möglich.
Außerhalb der Schulzeit können ganztägige Betreuungsangebote wahrgenommen werden.
Im Dezemberber 2023 ist das Preisgericht zusammengekommen, und hat drei Preise sowie eine Anerkennung verliehen:
- 1. Preis (27.200 Euro): ACMS Architekten GmbH, Dipl.-Ing. Architekt BDA Olaf Scheinpflug, Wuppertal
- 2. Preis (20.400 Euro): o5 Architekten BDA – Raab Hafke Lang GbR, Prof. Dipl.-Ing. Architekt BDA Jan-Henrik Hafke, Prof. Dipl.-Ing. Architekt BDA Joachim Raab, Dipl.-Ing. Architekt BDA Ruben Lang, Frankfurt am Main
- 3. Preis (13.600 Euro): Bär, Stadelmann, Stöcker Architekten und Stadtplaner PartGmbB, Dipl.-Ing. (FH) Architekt BDA Friedrich Bär, Dipl.-Ing. (FH) Architekt BDA Bernd Stadelmann, Dipl.-Ing. (FH) Architekt BDA Rainer Stöcker, Nürnberg
- Anerkennung (6.800 Euro): STUDIO SF Simon Fischer & Architekten GmbH, Dipl.-Ing. Architekt Simon Fischer, Mannheim
Preisträger in der Übersicht
1. Preis
ACMS Architekten GmbH, WuppertalAnerkennung
STUDIO SF Simon Fischer & Architekten GmbH, Mannheim2. Preis
o5 Architekten BDA – Raab Hafke Lang GbR, Frankfurt am Main3. Preis
Bär, Stadelmann, Stöcker Architekten und Stadtplaner PartGmbB, Nürnberg1. Preis
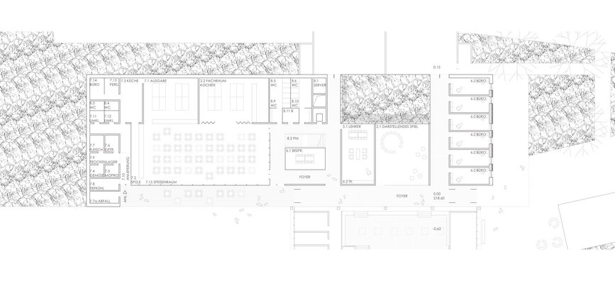
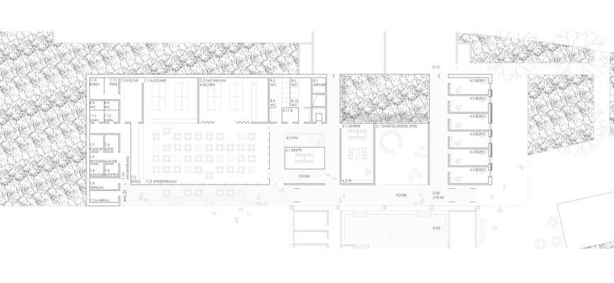
Der Entwurf besticht durch seine klare Struktur. Durch das Zurückspringen des neuen Baukörpers wird die Eingangssituation zur Schule städtebaulich aufgewertet. Die Cluster sind großzügig ausgestaltet und werden im 2. Obergeschoss durch Lichtkuppeln natürlich belichtet.
Auszug aus dem Protokoll der Preisgerichtssitzung zum 1. Preisträger
2. Preis
3. Preis
Anerkennung
Steckbrief
| Wettbewerbstitel | Nichtoffener einphasiger Realisierungswettbewerb Erweiterung der Gesamtschule Ebsdorfergrund Ortsteil Heskem |
|---|---|
| Auslober | Der Kreisausschuss des Landkreises Marburg-Biedenkopf, Im Lichtenholz 60, Marburg |
| Wettbewerbsmanagement | ACP Projektmanagement GmbH, Burger Landstraße 23a, Herborn |
| Teilnehmer | Architekt*innen |
| Beteiligung | 10 Arbeiten Vom Auslober im Vorfeld gesetzt wurden: Integrale Planung, Marburg A5 Planung GmbH, Bad Nauheim |
| Fachpreisrichter | Prof. Jürgen Hauck (Vorsitz) Klaus Wagner Sabrina Kattenborn Silvia Bangert Florian Bayer (Stellvertretung) Sascha Buurmann (Stellvertretung) |
| Sachpreisrichter | Marian Zachow Mirko Meyerding Ralf Laumer Ralph Pelka (Stellvertretung) |
| Sachverständige | Ann-Kristin Jeetun Gerrit Schönberger Gunhild Schulz-Gade Hanno Kern Karin Szeder Manuel Ferber Patrick Voyé Reiner Röder |













