
Der neue Campus für die Zentrale der Deutschen Bundesbank, Frankfurt am Main
Die Deutsche Bundesbank lobt einen einphasigen, nicht offenen hochbaulichen Realisierungswettbewerb nach RPW 2013 aus.
Gegenstand des Wettbewerbs
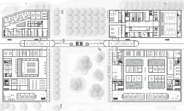
Gegenstand des Wettbewerbes ist der Neubau von rund 100.000 m² BGF (oberirdisch) für Büros, Konferenzzentrum, Sportstätten, Kita, Gastronomie, Tiefgaragen, Logistikzentrum und zugehöriger Infrastruktur als Erweiterung des Hauptstandortes der Deutschen Bundesbank in Frankfurt am Main. Ziel ist die Zusammenführung von 5.000 Arbeitsplätzen. Grundlage ist ein städtebauliches Gestaltungskonzept, dessen Ziel es ist, die bauliche Identität des Areals über diese umfangreichen Veränderungen zu stärken. Es soll nach außen ein zusammenhängendes Ganzes und nach innen ein gefasster Raum entstehen. Leitidee ist ein Campus als individuelles Ensemble kraftvoller Architekturen in einem parkartigen Gelände mit altem Baumbestand.
Im Juni 2020 ist das Preisgericht zusammengekommen und hat sechs Preise sowie zwei Anerkennungen verliehen:
- 1. Preis (140.000 Euro): Morger Partner Architekten AG, Basel
- 2. Preis (125.000 Euro): KSP Jürgen Engel Architekten GmbH, Frankfurt am Main
- 3. Preis (100.000 Euro): Schenker Salvi Weber Architekten ZT GmbH / Franz und Sue ZT GmbH, Wien
- 4. Preis (75.000 Euro): Ortner & Ortner Baukunst, Berlin
- 5. Preis (55.000 Euro): wittfoht architekten bda, Stuttgart
- 6. Preis (40.000 Euro): RKW Architektur + Rhode Kellermann Wawrowsky GmbH, Düsseldorf
- Anerkennung (15.000 Euro): Max Dudler, Berlin
- Anerkennung (15.000 Euro): Thomas Müller Ivan Reimann Gesellschaft von Architekten mbH, Berlin
Preisträger in der Übersicht
1. Preis
Morger Partner Architekten AG4. Preis
Ortner & Ortner BaukunstAnerkennung
Max Dudler2. Preis
KSP Jürgen Engel Architekten GmbH5. Preis
wittfoht architekten bdaAnerkennung
Thomas Müller Ivan Reimann Gesellschaft von Architekten mbH3. Preis
Schenker Salvi Weber Architekten ZT GmbH / Franz und Sue ZT GmbH6. Preis
RKW Architektur + Rhode Kellermann Wawrowsky GmbH1. Preis
Durch die lineare Anordnung der Baukörper, die gewählten Dimensionen und die wiederkehrenden Innenhöfe ergibt sich ein harmonischer Campus-Charakter. Durch den Kontrast der filigranen plastischen Fassadengestaltung mit Metall bei den Neubauten und dem schweren Beton der Bestandsgebäude entsteht ein interessantes Spannungsverhältnis zwischen Tradition und Zukunft.
Auszug aus dem Protokoll der Preisgerichtssitzung zum 1. Preisträger
2. Preis
3. Preis
4. Preis
5. Preis
6. Preis
Anerkennung
Anerkennung
Steckbrief
| Wettbewerbstitel | Hochbaulicher Realisierungswettbewerb „Der neue Campus für die Zentrale der Deutschen Bundesbank”, Frankfurt am Main |
|---|---|
| Auslober | Deutsche Bundesbank, Frankfurt am Main |
| Wettbewerbsmanagement | ANP Architektur- und Planungsgesellschaft mbH, Kassel |
| Teilnehmer | Architekt*innen |
| Beteiligung | 29 Arbeiten Vorab wurden eingeladen: AS + P Albert Speer + Partner, Frankfurt am Main Behnisch Architekten & Schulze + Grassov, Stuttgart & Kopenhagen Ferdinand Heide Architekt, Frankfurt am Main Henn GmbH, München Schneider + Schumacher Städtebau, Frankfurt am Main West 8 urban design & landscape architecture, Rotterdam |
| Fachpreisrichter | Prof. Arno Lederer, Architekt (Vorsitz) Prof. Jose Gutierrez Marquez, Architekt Günter Hoffmann, Architekt Brigitte Holz, Architektin und Stadtplanerin Prof. Ulrike Lauber, Architektin Sonja Moers, Architektin und Stadtplanerin Christine Steimle, Architektin |
| Sachpreisrichter | Dr. Johannes Beermann, Mitglied des Vorstandes Deutsche Bundesbank Prof. Dr. Jens-Uwe Fischer, Universität Leipzig Mike Josef, Planungsdezernent Stadt Frankfurt am Main Guido Müller, Leiter des Bereichs Bau Deutsche Bundesbank Diana Rutzka-Hascher, Leiterin des Zentralbereichs Personal Deutsche Bundesbank Prof. Sophie Wolfrum, Urbanistin |
| Sachverständige | Wolfgang Busch, Beschaffungszentrum Deutsche Bundesbank Jürgen Clarenz, Projektmanager Campusgestaltung und Neubau Deutsche Bundesbank Stefanie Evdjic, stv. Büroleiterin Hr. Dr. Beermann Deutsche Bundesbank Keumok Kim, Campusgestaltung und Neubau Deutsche Bundesbank Dr. Susanna von Meurers, Büroleiterin Hr. Dr. Beermann Deutsche Bundesbank Katrin Patrzalek, Campusgestaltung und Neubau Deutsche Bundesbank Daniel Schneider, Leitung Stabstelle Bereich Bau Deutsche Bundesbank Frank Schuppel, Gesamtprojektleiter Projekt Campus Deutsche Bundesbank |

































