
Gemeinschaftliches Wohnprojekt ‚Zum Feldlager‘ in Kassel
Die Vereinigte Wohnstätten 1889 eG lobt einen interdisziplinären nichtoffenen hochbaulichen und freiraumplanerischen Realisierungswettbewerb im anonymen Verfahren gemäß den Richtlinien der RPW 2013 aus.
Gegenstand des Wettbewerbs
Das südliche Areal des Neubaugebietes „Am Feldlager“ soll als innovatives gemeinschaftliches Wohnprojekt entwickelt werden, das Alleinstellungsmerkmale innerhalb der städtischen Wohnlandschaft besitzt, eine Verknüpfung zwischen Neubaugebiet und Bestandsstrukturen herstellt und damit eine Funktion für den Gesamtbereich erhält. Hierfür sind die Wettbewerbsteilnehmer aufgerufen, sich kreativ mit den Themen des gemeinschaftlichen Wohnens und der ‚Gemeinschaftlichkeit‘ über das konkrete Grundstück hinaus, mit Gebäudetypologien, individuellen, vielfältigen Grundrissen, Innen- und Außenbezügen, aber auch mit ökologischen Themen und Energie auseinanderzusetzen.
Im Februar 2021 ist das Preisgericht zusammengekommen und hat drei Preise verliehen:
- 1. Preis (7.000 Euro): foundation5+ architekten mit Sprengwerk Architektur und Sanierung, Kassel und foundation 5+ landschaftsarchitekten + planer bdla, Kassel
- 2. Preis (5.000 Euro): Göttinger Architekten Werkstatt, Göttingen mit Wette + Küneke Landschaftsarchitekten, Göttingen
- 3. Preis (3.000 Euro): Ohlmeier Architekten, Kassel mit Tim Corvin Kraus Landschaftsarchitekten, Hamburg
Preisträger in der Übersicht
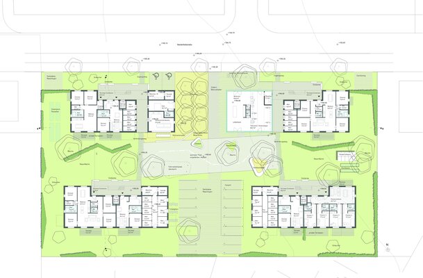
1. Preis
Alex Schmitt Photography, Kassel2. Preis
Alex Schmitt Photography, Kassel3. Preis
Alex Schmitt Photography, Kassel1. Preis
Die Arbeit überzeugt durch die Anordnung von vier klaren Baukörpern in den durch den B-Plan vorgegebenen Baufeldern. Die zur Niederfeldstraße orientierten Baukörper schaffen durch die auf der Straßenseite angeordnete Gebäudeerschließung eine Adressbildung. Die Gebäudeerschließung mit breiten und zugleich kurzen Laubengängen ermöglicht eine vielfältig gestaltbare Gebäudestruktur und schafft darüber hinaus wertvollen Begegnungsraum für die Laubenganganrainer.
Auszug aus dem Protokoll der Preisgerichtssitzung zum 1. Preisträger
2. Preis
3. Preis
Steckbrief
| Wettbewerbstitel | Interdisziplinärer Realisierungswettbewerb Gemeinschaftliches Wohnprojekt ‚Zum Feldlager‘ Kassel |
|---|---|
| Auslober | Vereinigte Wohnstätten 1889 eG, Friedrich-Ebert-Straße 181, Kassel |
| Wettbewerbsmanagement | ANP - Architektur- und Planungsgesellschaft mbH, Hessenallee 2, Kassel |
| Teilnehmer | Architekt*innen in Bürogemeinschaften mit Landschaftsarchitekt*innen |
| Beteiligung | 8 Arbeiten |
| Fachpreisrichter | Prof. Alexander Reichel, Architekt (Vorsitz) Britta Marquardt, Architektin Carlo Scherrer, Architekt Ines Schulz, Landschaftsarchitektin Klaus Weidner, Städtebauarchitekt Ulrike Pape, Architektin (Stellvertretung) Günter Sandmann (Stellvertretung) |
| Sachpreisrichter | Uwe Flotho, Vorstand Vereinigte Wohnstätten 1889 eG |
| Sachverständige | Heiko Büsscher, Abteilungsleiter Stadtplanung Petra Gerhold, Sachbearbeitung Stadtplanung Volker Lange, Abteilungsleiter Freiraumplanung Reinhard Wintersperger, Ortsvorsteher Harleshausen Karsten Wolf, Abteilungsleiter Technischer Service, Vereinigte Wohnstätten 1889 eG |










